2,082 物件入札可能!

茨城県小美玉市中野谷 羽鳥駅の競売物件
¥ 18,170,000円 戸建て 608m²

茨城県小美玉市中野谷 羽鳥駅の競売物件

30,000,117円
で売却されました
2025年11月14日(金)

期間入札 (初出品)

管轄裁判所
水戸地方裁判所本庁
事件番号
令和06年(ケ)第193号
売却基準価額
18,170,000円
買受申出保証額
3,634,000円
買受可能価額
14,536,000円

売却結果

売却価額
30,000,117円
開札結果
売却
入札者数
4人
落札者資格
法人
開札日
2025年11月14日(金)

物件概要

所在地
茨城県小美玉市中野谷字海道上610番地2、610番地1
評価上の交通
JR常磐線「羽鳥」駅 南東方 約5.8km (道路距離)
最寄バス停「中ノ谷」東方 約10m (道路距離)
参考交通
-
延床面積
608.45m² (184.1坪)
土地面積 (合計)
2,772.39m² (838.6坪)
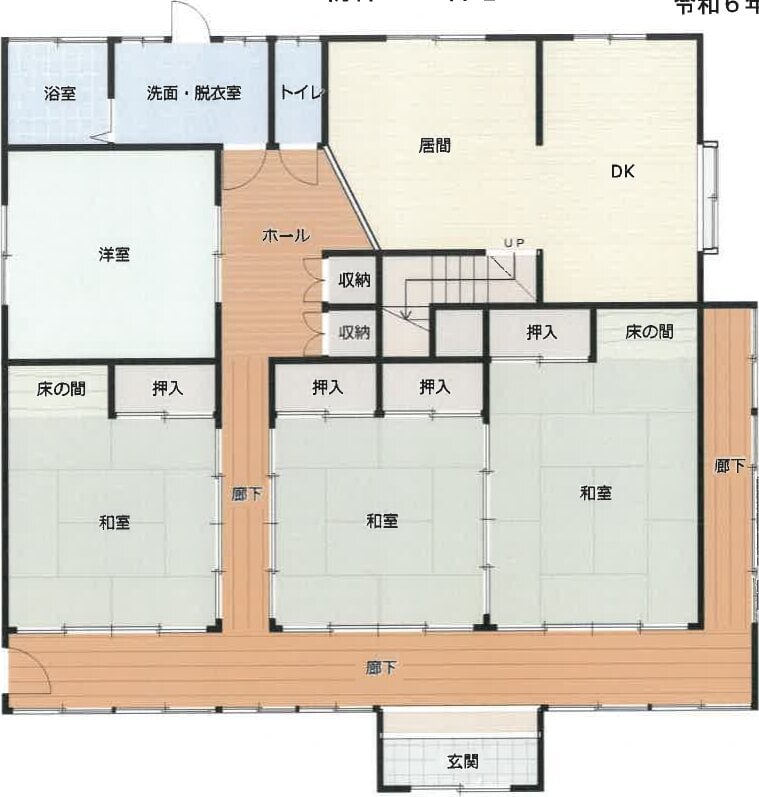
間取り
-
種類
店舗
用途地域
都市計画区域内無指定
物件番号
  • 1〜6. 土地
  • 7〜8. 建物 (所有権)

物件詳細

物件番号
1
種別
土地
所在地
小美玉市中野谷字海道下 320番2
地目 (登記)
宅地
地目 (現況)
-
土地面積 (登記)
543.38m² (164.4坪)
土地面積 (現況)
-
用途地域
都市計画区域内無指定
土地の利用状況
-
建ぺい率
60%
容積率
200%
持分
-
物件番号
2
種別
土地
所在地
小美玉市中野谷字海道下 321番1
地目 (登記)
宅地
地目 (現況)
-
土地面積 (登記)
268m² (81.1坪)
土地面積 (現況)
-
用途地域
都市計画区域内無指定
土地の利用状況
-
建ぺい率
60%
容積率
200%
持分
-
物件番号
3
種別
土地
所在地
小美玉市中野谷字海道下 321番2
地目 (登記)
宅地
地目 (現況)
-
土地面積 (登記)
339.02m² (102.6坪)
土地面積 (現況)
-
用途地域
都市計画区域内無指定
土地の利用状況
-
建ぺい率
60%
容積率
200%
持分
-
物件番号
4
種別
土地
所在地
小美玉市中野谷字海道上 610番1
地目 (登記)
宅地
地目 (現況)
-
土地面積 (登記)
736.44m² (222.8坪)
土地面積 (現況)
-
用途地域
都市計画区域内無指定
土地の利用状況
-
建ぺい率
60%
容積率
200%
持分
-
物件番号
5
種別
土地
所在地
小美玉市中野谷字海道上 610番2
地目 (登記)
宅地
地目 (現況)
-
土地面積 (登記)
697.55m² (211.0坪)
土地面積 (現況)
-
用途地域
都市計画区域内無指定
土地の利用状況
-
建ぺい率
60%
容積率
200%
持分
-
物件番号
6
種別
土地
所在地
小美玉市中野谷字海道上 611番
地目 (登記)
宅地
地目 (現況)
-
土地面積 (登記)
188m² (56.9坪)
土地面積 (現況)
-
用途地域
都市計画区域内無指定
土地の利用状況
-
建ぺい率
60%
容積率
200%
持分
-
物件番号
7
種別
建物
所在地
小美玉市中野谷字海道上610番地2、610番地1
家屋番号
入札終了
種類 (登記)
店舗
種類 (現況)
-
構造 (登記)
鉄骨造亜鉛メッキ鋼板葺2階建
構造 (現況)
-
床面積 (登記)
1階 517.81m² (156.6坪)
2階 90.64m² (27.4坪)
床面積 (現況)
-
間取り
その他
敷地利用権
所有権
占有者
債務者・所有者
築年月
平成11年10月 (1999年・築26年)
持分
-
附属建物
符号 1
種類(現況) -
構造(登記) 鉄骨造亜鉛メッキ鋼板葺平家建
構造(現況) -
種類(登記) 倉庫
床面積(登記) 183.68m²
床面積(現況) -
物件番号
8
種別
建物
所在地
小美玉市中野谷字海道上611番地、610番地2
家屋番号
入札終了
種類 (登記)
居宅
種類 (現況)
-
構造 (登記)
木造セメント瓦・亜鉛メッキ鋼板葺2階建
構造 (現況)
-
床面積 (登記)
1階 142.95m² (43.2坪)
2階 38.36m² (11.6坪)
床面積 (現況)
-
間取り
その他
敷地利用権
所有権
占有者
債務者・所有者
築年月
昭和31年 (1956年・築69年)
持分
-
注意事項
本詳細情報画面の内容については、必ず物件資料3点セット(物件明細書、現況調査報告書及び評価書等)をダウンロードの上、ご確認ください(民事執行法63条2項1号の申出がある場合等があります)。 本システムからダウンロードした「現況調査報告書」及び「評価書」に引用されている写真、資料及び図面は、本システム上は添付されていない場合があります。

売却スケジュール

売却実施処分日
2025年9月10日(水)
公告日
2025年10月1日(水)
閲覧開始日
2025年10月1日(水)
入札期間
2025年10月31日(金)〜11月7日(金)
開札日
2025年11月14日(金)
特別売却期間
2025年11月17日(月)〜11月18日(火)
売却決定日
2025年12月5日(金)
確定日
2025年12月13日(土)
状態
終了
スケジュール
年間売却スケジュール/水戸地方裁判所本庁
出典:裁判所BIT 不動産競売物件情報

最寄り駅・周辺地図

JR常磐線羽鳥駅 51分 (約4.1km)
JR常磐線石岡駅 65分 (約5.1km)
JR常磐線高浜駅 88分 (約7.0km)

茨城県小美玉市 戸建ての販売価格

取引平均-

近隣の戸建て落札価格

入札数{{ point.bids }}入札数?{{ point.base }}{{ point.sold }}{{ point.sqm.toLocaleString() }}m²築{{ point.age }}年
周辺には戸建ての落札履歴がありません。地図をドラッグして範囲や縮尺を変えてお試しください