1,758 物件入札可能!

兵庫県高砂市伊保崎 伊保駅10分の公売物件
¥ 2,940,000円 戸建て 61m²

兵庫県高砂市伊保崎 伊保駅10分の公売物件

4,381,381円
で売却されました
2025年11月4日(火)

インターネット公売 (初出品)

価額情報

落札価額 (最高入札価額)
4,381,381円
落札者 (最高価買受申込者)
xztVRA992479
入札件数
2
次順位買受申込価額
-円
次順位買受申込者
該当なし
見積価額
2,940,000円
公売保証金
300,000円

スケジュール

参加申し込み受付期間
2025年10月3日13時0分 〜 2025年10月21日23時0分
入札期間
2025年10月28日13時0分 〜 2025年11月4日13時0分
買受代金納付期限
2025年11月25日14時30分

代金納付方法

公売保証金納付方法
クレジットカードまたは銀行振込など
買受代金納付方法
銀行振込 現金書留 小切手 直接持参
オークション種別
インターネット公売
実施方法
入札形式
執行機関名称
高砂市
売却区分番号
070302
支払い方法
銀行振込 現金書留 小切手 直接持参

物件情報

物件の種類
土地付建物
物件の所在
兵庫県

不動産の基本情報

登記簿の表示
土地の表示
所在 高砂市伊保崎四丁目
地番 1777番4
地目 宅地
地積 206.86m2
建物の表示
所在 高砂市伊保崎四丁目 1777番地・1778番地合併4
家屋番号 1777番4
種類 居宅
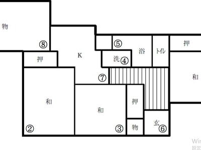
構造 木造瓦葺平家建
床面積 60.56m2

(未登記建物)
種類 附属家
構造 木造亜鉛メッキ鋼板葺平家建
床面積 14.61m2
所在地
兵庫県高砂市伊保崎四丁目1777番4
住居表示
兵庫県高砂市伊保崎4丁目4-5
交通、最寄り駅など
山陽電鉄本線「伊保」駅から北方へ約600メートル (道路距離)
現況
・雑草が生い茂っています。
・建物内部の調査の結果、仏壇はありません。
説明
注意事項
・公売財産については、あらかじめその現況及び関係公簿等をご確認ください。
・掲載している図面及び写真が現況と異なる場合は、現況を優先します。
・執行機関 (高砂市) は、公売財産の種類又は品質に関する契約不適合責任等を負いません。
・執行機関 (高砂市) は、公売財産の引渡し義務を負わないため、使用者又は占有者に対して明渡しを求める場合や、公売財産内にある動産等の処理については買受人が行うことになります。
・土地の境界については隣接地所有者と協議してください。
・土壌汚染やアスベストなどに関する専門的な調査は行っておりません。
・権利移転及び危険負担の移転の時期は、売却決定後、買受人が買受代金を納付した時です。ただし、法令等の規定により関係機関の許可又は登録等を要する公売財産については、要件を満たさなければ、権利移転の効力は生じません。
・公売財産の権利移転に伴う費用は買受人の負担となります。
・公売を中止する場合がありますので、その際は中止の旨をお知らせします。
・売却区分番号内に複数の財産 (財産がひとつで所有者を異にする場合を含む。) があるものについては、国税徴収法第89条第3項の規定に基づき、一括換価の方法により公売を行います。

土地の情報

土地面積 (㎡)
206.86 (登記簿)
土地権利
所有権
地目
宅地
都市計画地域
市街化区域
用途地域
第一種中高層住居専用地域 (アパートやマンションの建築が可能)
建ぺい率 (%)
60
容積率 (%)
200
高度地区 (種)
3
防火地域
不明
日影規制
高さ10m超、4時間・2.5時間/4m
その他法令などの規制
立地適正化計画・土地機能誘導区域外、居住誘導区域内
地勢など
形状 ほぼ長方形
開口 約11.0m (南東辺)
奥行 約17.0m
地勢 概ね平坦
接面街路 概ね等高接面
幅員、接道状況
南東側 約4.5m (市道伊保166号線・法第42条1項1号道路)
南西側 約3.4m (市道伊保165号線・法42条2項道路)
供給処理施設
上水道・公共下水道・都市ガスは整備済み。
その他土地に関する物件情報
・角地である
・道路方位が優る
・セットバックを要する

建物の情報

建物面積
60.56m² (18.3坪)
延床面積
60.56m² (18.3坪)
構造
木造
建築年月
昭和39年 (1964年) 1月
階建/階
1
総戸数
1戸
間取り
3K
その他建物に関する物件情報
・未登記部分 (14.61m²) がある (建築時期は登記建物と同時期と推定される)。

物件に関するお問い合わせ先

出品行政機関
高砂市役所
担当部署
債権管理課債権管理係
メールアドレス
tact2340@city.takasago.lg.jp
電話
079-443-9018
受付時間
平日午前8時30分〜午後17時15分
備考
-

補足事項

共通説明文
高砂市インターネット公売をご利用いただくには、高砂市インターネット公売ガイドラインをよくお読みいただき、確認、同意していただくことが必要です。
・公売参加申し込みについて
KSI官公庁オークションのログインIDを取得し、公売システムの画面上で、公売参加申し込みを行ってください。
・住民登録などのされている住所、氏名 (法人の場合は、商業登記簿などに登記されている所在地、名称、代表者氏名) および電話番号を公売参加者など情報として登録してください。
・法人が公売に参加する場合は、法人代表者名でログインIDを取得したうえで、法人代表者が公売参加の手続きを行ってください。なお、法人代表者以外の方に公売参加の手続きをさせる場合は、その方を代理人とする必要があります。
・代理人に公売参加の手続きをさせる場合は、代理人のログインIDにより、代理人が公売参加の手続きを行ってください。代理人は、公売システムの画面上で、代理人による手続きの欄の「する」を選択してください。
・共同入札する場合は、代表者のログインIDにより、代表者が公売参加の手続きを行ってください。代表者は、公売システムの画面上で、共同入札の欄の「する」を選択してください。
・入札前の提出書類について
入札開始2開庁日前までに伊勢市が必要書類の提出を確認できない場合、入札をすることができません。様式は高砂市ホームページにあります。(郵送による提出も可能)

[個人が公売に参加する場合]
・陳述書 (個人用)
・買受申込者が宅地建物取引業又は債権回収管理業の事業者である場合には、その許認可等を受けていることを証する書面 (宅地建物取引業の免許証等) の写し

[法人が公売に参加する場合]
・陳述書 (法人用)
・買受申込者が宅地建物取引業又は債権回収管理業の事業者である場合には、その許認可等を受けていることを証する書面 (宅地建物取引業の免許証等) の写し
・陳述書 (法人用) 別紙
・法人の役員を証する書面 (商業登記簿に係る登記事項証明書等)

[代理人に公売参加の手続きをさせる場合]
・陳述書 (個人用)
・買受申込者が宅地建物取引業又は債権回収管理業の事業者である場合には、その許認可等を受けていることを証する書面 (宅地建物取引業の免許証等) の写し
・委任状
・公売参加者の住所証明書 (公売参加者が法人の場合は商業登記簿謄本など)

[共同入札する場合]
・陳述書 (個人用) ※共同入札者全員分
・買受申込者が宅地建物取引業又は債権回収管理業の事業者である場合には、その許認可等を受けていることを証する書面 (宅地建物取引業の免許証等) の写し
・代表者以外の方全員から代表者に対する委任状
・共同入札者全員の住所証明書 (共同入札者が法人の場合は商業登記簿謄本など)
・共同入札者持分内訳書

[公売財産が農地である場合]
農業委員会などの発行する買受適格証明書
・公売保証金について
入札に先立って、公売保証金を納付してください。

[クレジットカードによる納付]
クレジットカードで公売保証金を納付する場合は、公売システムの公売物件詳細画面より公売参加申し込みを行い、公売保証金を所定の手続きに従って、クレジットカードにて納付してください。
・法人で公売に参加する場合、法人代表者名義のクレジットカードをご使用ください。
・代理人に公売参加の手続きをさせる場合、代理人名義のクレジットカードをご使用ください。
・共同入札する場合は、クレジットカードによる公売保証金の納付はできません。

[銀行振込などによる納付]
銀行振込などで公売保証金を納付する場合は、公売システムの公売物件詳細画面より公売参加仮申し込みを行ってください。その後、高砂市ホームページから「公売保証金納付申込書兼返還請求書兼口座振替依頼書」を印刷し、必要事項を記入・なつ印のうえ、高砂市に書留郵便にて送付してください。次に高砂市から公売参加仮申し込みを行った公売参加者などに対し、公売参加者などが「公売保証金納付申込書兼返還請求書兼口座振替依頼書」に記入したメールアドレスに送信する電子メールにて公売保証金納付方法をご案内します。当該電子メールに従って、銀行口座への振込、現金書留 (50万円以下の場合のみ) による送付、または直接持参にて公売保証金を納付してください。
・銀行口座への振込により公売保証金を納付する場合は、高砂市が納付を確認できるまで3開庁日程度要することがあります。
・原則として、入札開始2開庁日前までに高砂市が公売保証金の納付を確認できない場合、入札することができません。
・現金書留による送付または直接持参により公売保証金を納付する場合、現金もしくは銀行振出の小切手 (電子交換所に加入している銀行が振り出したもので、かつ振出日から起算して8日を経過していないものに限る) で高砂市に納付してください。
・銀行振込の際の振込手数料や現金書留の郵送料などは公売参加者などの負担となります。
・代理人に公売参加の手続きをさせる場合、代理人は「公売保証金納付申込書兼返還請求書兼口座振替依頼書」に公売参加者の住所および氏名など並びに代理人であることを明記した上で、代理人名で公売保証金を納付してください。
・共同入札する場合は、仮申し込みを行った代表者名で公売保証金を納付する必要があります。
・「公売保証金納付申込書兼返還請求書兼口座振替依頼書」に記入する振込先金融機関は、高砂市公金収納取扱金融機関に限ります。
・その他
・公売財産の下見会の実施予定はありまん。
出典:官公庁オークション - 兵庫県高砂市伊保崎4丁目4-5(土地・建物):高砂市のインターネット公売物件詳細

最寄り駅・周辺地図

兵庫県高砂市 戸建ての販売価格

取引平均-

近隣の戸建て落札価格

入札数{{ point.bids }}入札数?{{ point.base }}{{ point.sold }}{{ point.sqm.toLocaleString() }}m²築{{ point.age }}年
周辺には戸建ての落札履歴がありません。地図をドラッグして範囲や縮尺を変えてお試しください