2,114 物件入札可能!

兵庫県神戸市西区平野町福中 西明石駅の公売物件
¥ 2,706,000円 戸建て 356m²

兵庫県神戸市西区平野町福中 西明石駅の公売物件

不売になりました
2025年11月19日(水)

再出品情報があります

売却結果

実施局署
大阪国税局
公売公告番号
08号
公告日
令和7年10月9日
入札期間
令和7年11月7日 から 令和7年11月14日
公売の方法
期間入札
開札期日
令和7年11月18日午前11時00分
売却決定の日時
令和7年12月9日午前11時00分
次順位買受申込者に対する売却決定の日は、国税徴収法第113条第2項に定める日となります。
売却決定の場所
大阪国税局 徴収部 特別整理総括第二課
売却区分番号
789-3
入札者等の区分
入札なし
入札(売却)価額
0円

期間入札 (初出品)

実施局署
大阪 国税局
見積価額
2,706,000円
公売の方法
期間入札
公売公告番号
08号
公売保証金
300,000円
売却区分番号
789-3
公売保証金の提供方法
現金等
入札期間
令和7年11月7日午前9時00分 から 令和7年11月14日午後5時00分
入札の場所
大阪国税局 徴収部 特別整理総括第二課
必要書類の提出期限 (電子入札の場合)
令和7年11月13日午後5時00分
公売保証金の納付期限
令和7年11月13日午後5時00分
開札期日
令和7年11月18日午前11時00分
開札の場所
大阪合同庁舎第三号館 1階 打合せ室
買受代金納付期限
令和7年12月9日午後3時00分
売却決定の日時
令和7年12月9日午前11時00分
売却決定の場所
大阪国税局 徴収部 特別整理総括第二課
追加入札期間
令和8年1月19日午前9時00分 から 令和8年1月23日午後5時00分
追加入札開札期日
令和8年1月27日午前11時00分
開札の場所
大阪国税局 徴収部 特別整理総括第二課
買受代金納付期限
令和8年2月17日午後3時00分
売却決定の日時
令和8年2月17日午前11時00分
売却決定の場所
大阪国税局 徴収部 特別整理総括第二課
住居表示等
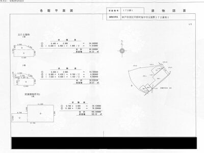
兵庫県神戸市西区平野町福中172番1
交通機関
神戸市営地下鉄 西神・山手線 西神中央駅 北東方約4.9キロメートル (道路距離)
床面積合計
355.83m² (107.6坪)
主たる種類
事務所

詳細情報 (個別)

財産番号
1
種類 (登記簿表示内容)
事務所
所在地 (登記簿表示内容)
兵庫県神戸市西区平野町福中字玉屋敷 172番地1
家屋番号 (登記簿表示内容)
172番1
構造 (登記簿表示内容)
木造亜鉛メッキ鋼板ぶき2階建
床面積 (登記簿表示内容)
1階 36.33m² (11.0坪)
2階 30.57m² (9.2坪)
地盤・地勢
公売財産の敷地は、間口約28メートル、奥行き約10〜18メートルの不整形な画地であり、地勢はほぼ平たんである。
接道状況
公売財産の敷地は、北西側で幅員約11メートルの舗装市道「平野第5号線」に、南西側で幅員約3.5メートルの舗装市道「平野第7号線」(建築基準法第42条第2項該当) に、それぞれほぼ等高に接面する。
使用状況
公売財産は、平成10年6月頃の建築であり、令和7年5月現在、利用されていないと見込まれる。
公売財産には資材等の動産が存在する。
公売財産の敷地は、敷地所有者から提供された賃貸借契約書によると、以下の内容で賃貸借されている。
契約年月日 平成9年10月1日
契約形態 書面
使用形態 賃貸借
賃貸借物件 神戸市西区平野町福中玉屋敷百七拾貮 土地
契約期間 平成9年10月1日から平成11年9月30日までの2年間 (更新中)
賃料 月額80,000円
差入保証金 500,000円
要返還額 保証金は明渡しに際して一割引と定め、明渡し完了後に差引きした金額である金45万円を貸主は借主に支払うものとする。
管理状況
-
附属建物の表示 - 符号 (登記簿表示内容)
3
附属建物の表示 - 種類 (登記簿表示内容)
事務所
附属建物の表示 - 構造 (登記簿表示内容)
木造亜鉛メッキ鋼板ぶき平家建
附属建物の表示 - 床面積 (登記簿表示内容)
23.13m² (7.0坪)

詳細情報 (共通)

公法上の規制
市街化調整区域
特記事項
-
その他事項
公売財産の売却決定は、最高価申込者に係る入札価額をもって行います。
留意事項
1. 公売財産については、あらかじめその現況及び関係公簿等をご確認ください。
2. 掲載している図面及び写真が現況と異なる場合は、現況を優先します。
3. 公売財産に財産の種類又は品質に関する不適合があっても、執行機関 (国) は、担保責任を負いません。
4. 執行機関 (国) は、公売財産の引渡義務を負わないため、使用者又は占有者に対して明渡しを求める場合や、公売財産内にある動産等の処理については買受人が行うことになります。
5. 土地の境界については隣接地所有者と、接面道路 (私道) の利用については道路所有者とそれぞれ協議してください。
6. 土壌汚染やアスベストなどに関する専門的な調査は行っておりません。
7. 権利移転及び危険負担の移転の時期は、売却決定後、買受人が買受代金を納付した時です。
ただし、法令等の規定により許可又は登録等を要する公売財産については、関係機関の許可又は登録等の要件を満たさなければ、権利移転の効力は生じません。
8. 公売財産の権利移転に伴う費用は買受人の負担となります。
9. 公売を中止する場合がありますので、入札前に公売中止の有無をご確認ください。
10. 売却区分番号内に複数の財産 (財産が一つで所有者を異にする場合を含む。) があるものについては、国税徴収法第89条第3項の規定に基づき、一括換価の方法により公売を行います。

公売財産に関するお問い合せ先

お問い合せ先
大阪 国税局
お問い合せの際には、開札日(令和7年11月18日)と売却区分番号(789-3)をお申出の上ご照会ください。
担当部署名
特別整理総括第二課
郵便番号
540-8541
所在地
大阪市中央区大手前1丁目5番63号大阪合同庁舎第3号館
電話番号
06-6941-5331
内線
4688
電話受付時間
平日午前9時から午後5時まで
出典:国税庁ホームページ - (789-3 兵庫県神戸市西区) 建物詳細 | 公売情報

最寄り駅・周辺地図

兵庫県神戸市西区 戸建ての販売価格

取引平均-

近隣の戸建て落札価格

入札数{{ point.bids }}入札数?{{ point.base }}{{ point.sold }}{{ point.sqm.toLocaleString() }}m²築{{ point.age }}年
周辺には戸建ての落札履歴がありません。地図をドラッグして範囲や縮尺を変えてお試しください