2,515 物件入札可能!

山梨県笛吹市八代町南 石和温泉駅の競売物件
¥ 4,370,000円 戸建て 142m²

山梨県笛吹市八代町南 石和温泉駅の競売物件

3,668,800円
で売却されました
2025年12月18日(木)

期間入札 (初出品)

管轄裁判所
甲府地方裁判所本庁
事件番号
令和07年(ケ)第14号
売却基準価額
4,370,000円
買受申出保証額
874,000円
買受可能価額
3,496,000円

売却結果

売却価額
3,668,800円
開札結果
売却
入札者数
1人
落札者資格
法人
開札日
2025年12月18日(木)

物件概要

所在地 (地番)
山梨県笛吹市八代町南字渋田 2874番地7
住居表示
山梨県笛吹市八代町南2874番地7
評価上の交通
JR中央本線「石和温泉」駅 南方 経路 約4.9km
参考交通
-
延床面積
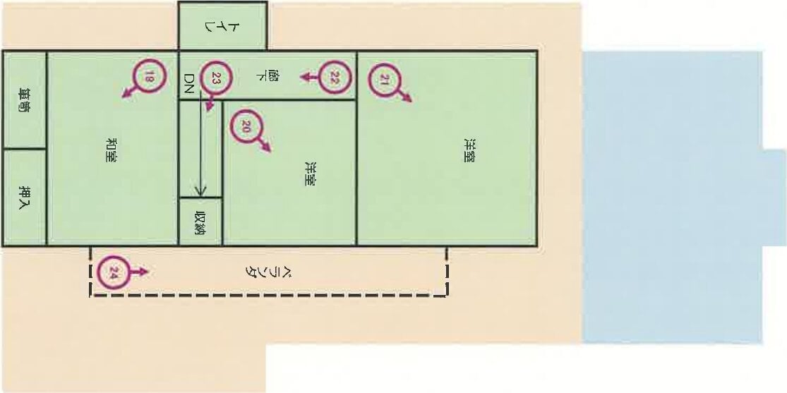
141.72m² (42.9坪)
土地面積 (合計)
218.34m² (66.0坪)
間取り
-
種類
居宅
用途地域
都市計画区域内未指定
物件番号
  • 1. 土地
  • 2. 建物 (所有権)

物件詳細

物件番号
1
種別
土地
所在地
笛吹市八代町南字渋田 2874番7
地目 (登記)
宅地
地目 (現況)
-
土地面積 (登記)
218.34m² (66.0坪)
土地面積 (現況)
-
用途地域
都市計画区域内未指定
土地の利用状況
-
建ぺい率
70%
容積率
200%
持分
-
物件番号
2
種別
建物
所在地
笛吹市八代町南字渋田 2874番地7
家屋番号
入札終了
種類 (登記)
居宅
種類 (現況)
-
構造 (登記)
木造セメント瓦・亜鉛メッキ鋼板葺2階建
構造 (現況)
-
床面積 (登記)
1階 80.32m² (24.3坪)
2階 41.40m² (12.5坪)
床面積 (現況)
1階 約100.32m² (30.3坪)
2階 41.40m² (12.5坪)
間取り
その他
敷地利用権
所有権
占有者
債務者・所有者
築年月
平成1年10月 (1989年・築36年)
持分
-
注意事項
本詳細情報画面の内容については、必ず物件資料3点セット(物件明細書、現況調査報告書及び評価書等)をダウンロードの上、ご確認ください(民事執行法63条2項1号の申出がある場合等があります)。 本システムからダウンロードした「現況調査報告書」及び「評価書」に引用されている写真、資料及び図面は、本システム上は添付されていない場合があります。

売却スケジュール

売却実施処分日
2025年10月29日(水)
公告日
2025年11月14日(金)
閲覧開始日
2025年11月14日(金)
入札期間
2025年12月4日(木)〜12月11日(木)
開札日
2025年12月18日(木)
特別売却期間
2025年12月19日(金)〜12月23日(火)
売却決定日
2026年1月14日(水)
確定日
2026年1月22日(木)
状態
終了
スケジュール
年間売却スケジュール/甲府地方裁判所本庁
出典:裁判所BIT 不動産競売物件情報

最寄り駅・周辺地図

JR中央本線石和温泉駅 52分 (約4.1km)
JR中央本線酒折駅 65分 (約5.2km)
JR身延線南甲府駅 69分 (約5.5km)

山梨県笛吹市 戸建ての販売価格

取引平均-

近隣の戸建て落札価格

入札数{{ point.bids }}入札数?{{ point.base }}{{ point.sold }}{{ point.sqm.toLocaleString() }}m²築{{ point.age }}年
周辺には戸建ての落札履歴がありません。地図をドラッグして範囲や縮尺を変えてお試しください