1,381 物件出品中!

神奈川県横須賀市長浦町 田浦駅4分の公売物件
¥ 7,500,000円 戸建て 176m²

神奈川県横須賀市長浦町 田浦駅4分の国税庁公売物件

不売になりました
2026年1月21日(水)

売却結果

実施局署
東京国税局
公売公告番号
45号
公告日
令和7年12月9日
入札期間
令和8年1月6日 から 令和8年1月15日
公売の方法
期間入札
開札期日
令和8年1月20日午前10時00分
売却決定の日時
令和8年2月4日午前10時00分
次順位買受申込者に対する売却決定の日は、国税徴収法第113条第2項に定める日となります。
売却決定の場所
東京国税局
売却区分番号
3902-1
入札者等の区分
入札なし

期間入札 (初出品)

実施局署
東京 国税局
見積価額
7,500,000円
公売の方法
期間入札
公売公告番号
45号
公売保証金
800,000円
売却区分番号
3902-1
公売保証金の提供方法
現金等
入札期間
令和8年1月6日午前9時00分 から 令和8年1月15日午後5時00分
入札の場所
東京国税局
必要書類の提出期限 (電子入札の場合)
令和8年1月13日午後5時00分
公売保証金の納付期限
令和8年1月13日午後5時00分
開札期日
令和8年1月20日午前10時00分
開札の場所
東京国税局
買受代金納付期限
令和8年2月4日午後3時00分
売却決定の日時
令和8年2月4日午前10時00分
売却決定の場所
東京国税局
追加入札期間
令和8年1月27日午前9時00分 から 令和8年2月3日午後5時00分
追加入札開札期日
令和8年2月6日午前10時00分
開札の場所
東京国税局
買受代金納付期限
令和8年2月24日午後3時00分
売却決定の日時
令和8年2月24日午前10時00分
売却決定の場所
東京国税局
住居表示等
神奈川県横須賀市長浦町5丁目2番3号
交通機関
JR (東日本) 横須賀線 田浦駅 徒歩 6分
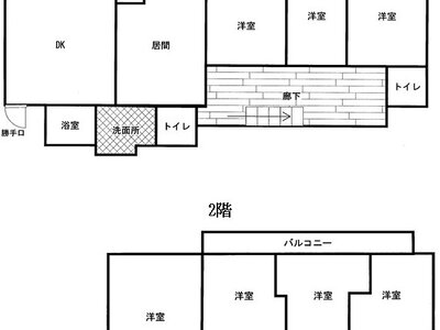
床面積合計
176.42m² (53.4坪)
主たる種類
共同住宅 作業所

詳細情報 (個別)

財産番号
1
種類 (登記簿表示内容)
共同住宅 作業所
所在地 (登記簿表示内容)
神奈川県横須賀市長浦町五丁目 2番地3
家屋番号 (登記簿表示内容)
2番3
構造 (登記簿表示内容)
木造亜鉛メッキ鋼板葺2階建
床面積 (登記簿表示内容)
1階 112.79m² (34.1坪)
2階 63.63m² (19.2坪)
地盤・地勢
西向き緩傾斜地
接道状況
東側 幅員約2.8メートル舗装市道 (建築基準法上の道路) ほぼ等高接面
使用状況
昭和35年頃建築
所有者の申立てによると、令和7年5月14日現在居住その他の使用がなされていない。
動産あり
対象物件の敷地 (2番3)
第三者所有
敷地所有者の申立てによる賃貸借契約の内容
現行地代 (月額) 21,560円
未払地代 (令和7年4月24日現在) 862,400円
敷金 1,000,000円
差し入れた敷金は買受人に引継ぎされない
存続期間その他賃貸借契約等の内容は不明
対象物件の現況 (登記簿の表示と異なる点)
床面積 1階 約126m²
2階 約88m²
(現況調査時に概測した数量)
留意事項
公売は現況有姿により行うものであるため、次の一般的事項を十分ご理解の上、公売へご参加ください。
1. 公売財産については、あらかじめその現況及び関係公簿等を確認してください。
2. 公売財産に財産の種類又は品質に関する不適合があっても、執行機関 (国) は、担保責任を負いません。
3. 執行機関 (国) は、公売財産の引渡義務を負わないため、使用者又は占有者に対して明渡しを求める場合や不動産内にある動産の処理などはすべて買受人の責任において行うことになります。
4. 土地の境界については隣接地所有者と、接面道路 (私道) の利用については道路所有者とそれぞれ協議してください。
5. 土壌汚染やアスベストなどに関する専門的な調査は行っておりません。

なお、売却区分番号内に複数の財産 (財産が一つで所有者を異にする場合を含む。) があるものについては、国税徴収法第89条第3項の規定に基づき、一括換価の方法により公売を行います。

詳細情報 (共通)

公法上の規制
第1種住居地域
準防火地域
第1種高度地区
日影規制 (4時間-2.5時間)
宅地造成等工事規制区域
立地適正化計画 (都市機能誘導区域外)
特記事項
土砂災害警戒区域
増築部分あり
対象物件の敷地は件外土地 (2番4) の一部を含む可能性がある。
その他事項
公売財産の売却決定は、最高価申込者に係る入札価額をもって行います。

公売財産に関するお問い合せ先

お問い合せ先
東京 国税局
お問い合せの際には、開札日(令和8年1月20日)と売却区分番号(3902-1)をお申出の上ご照会ください。
担当部署名
特別整理総括第二課
郵便番号
104-8449
所在地
中央区築地5丁目3番1号
電話番号
03-3542-2111
内線
3305、3306、3307
電話受付時間
平日午前9時から午後5時まで
出典:国税庁ホームページ - (3902-1 神奈川県横須賀市) 建物詳細 | 公売情報

最寄り駅・周辺地図

神奈川県横須賀市 戸建ての販売価格

取引平均-

近隣の戸建て落札価格

入札数{{ point.bids }}入札数1{{ point.base }}{{ point.sold }}{{ point.sqm.toLocaleString() }}m²築{{ point.age }}年
周辺には戸建ての落札履歴がありません。地図をドラッグして範囲や縮尺を変えてお試しください