2,082 物件入札可能!

石川県小松市一針町レ 明峰駅22分の競売物件
¥ 7,520,000円 戸建て 128m²

石川県小松市一針町レ 明峰駅22分の競売物件

16,356,000円
で売却されました
2026年1月21日(水)

期間入札 (初出品)

管轄裁判所
金沢地方裁判所本庁
事件番号
令和07年(ケ)第44号
売却基準価額
7,520,000円
買受申出保証額
1,504,000円
買受可能価額
6,016,000円

売却結果

売却価額
16,356,000円
開札結果
売却
入札者数
9人
落札者資格
個人
開札日
2026年1月21日(水)

物件概要

所在地
石川県小松市一針町レ 121番地1
評価上の交通
IRいしかわ鉄道線「小松」駅 北東方 約3400m
バス停「一針西」南方 約160m (徒歩約2分)
参考交通
-
延床面積
128m² (38.7坪)
土地面積 (合計)
198.36m² (60.0坪)
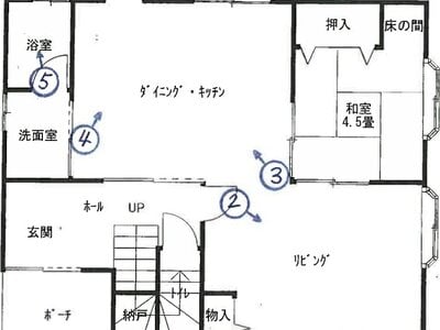
間取り
-
種類
居宅
用途地域
第一種住居地域 (店舗や事務所・ホテルなども建築可能)
物件番号
  • 1. 土地
  • 2. 建物 (所有権)

物件詳細

物件番号
1
種別
土地
所在地
小松市一針町レ 121番1
地目 (登記)
宅地
地目 (現況)
-
土地面積 (登記)
198.36m² (60.0坪)
土地面積 (現況)
-
用途地域
第一種住居地域 (店舗や事務所・ホテルなども建築可能)
土地の利用状況
-
建ぺい率
60%
容積率
200%
持分
-
物件番号
2
種別
建物
所在地
小松市一針町レ 121番地1
家屋番号
入札終了
種類 (登記)
居宅
種類 (現況)
-
構造 (登記)
木造かわらぶき2階建
構造 (現況)
-
床面積 (登記)
1階 67.50m² (20.4坪)
2階 60.50m² (18.3坪)
床面積 (現況)
-
間取り
その他
敷地利用権
所有権
占有者
あり
築年月
平成22年1月 (2010年・入札時築15年)
持分
-
注意事項
本詳細情報画面の内容については、必ず物件資料3点セット(物件明細書、現況調査報告書及び評価書等)をダウンロードの上、ご確認ください(民事執行法63条2項1号の申出がある場合等があります)。 本システムからダウンロードした「現況調査報告書」及び「評価書」に引用されている写真、資料及び図面は、本システム上は添付されていない場合があります。

売却スケジュール

売却実施処分日
2025年12月5日(金)
公告日
2025年12月19日(金)
閲覧開始日
2025年12月19日(金)
入札期間
2026年1月7日(水)〜1月14日(水)
開札日
2026年1月21日(水)
特別売却期間
2026年1月22日(木)のみ
売却決定日
2026年2月4日(水)
確定日
2026年2月13日(金)
状態
終了
スケジュール
年間売却スケジュール/金沢地方裁判所本庁
出典:裁判所BIT 不動産競売物件情報

最寄り駅・周辺地図

石川県小松市 戸建ての販売価格

取引平均-

近隣の戸建て落札価格

入札数{{ point.bids }}入札数?{{ point.base }}{{ point.sold }}{{ point.sqm.toLocaleString() }}m²築{{ point.age }}年
周辺には戸建ての落札履歴がありません。地図をドラッグして範囲や縮尺を変えてお試しください