1,973 物件入札可能!

新潟県南魚沼郡湯沢町 「ダイアパレス苗場」の公売物件
¥ 67,000円 マンション 34m²

新潟県南魚沼郡湯沢町 「ダイアパレス苗場」の官公庁公売物件

390,000円
で売却されました
2026年2月9日(月)

インターネット公売 () 2万円 値下げ

価額情報

落札価額 (最高入札価額)
390,000円
落札者 (最高価買受申込者)
stzMLD138882
次順位買受申込価額
-円
次順位買受申込者
該当なし
見積価額
67,000円
公売保証金
20,000円

スケジュール

参加申し込み受付期間
2026年1月8日13時0分 〜 2026年1月26日23時0分
入札期間
2026年2月2日13時0分 〜 2026年2月9日13時0分
買受代金納付期限
2026年3月2日14時30分

代金納付方法

公売保証金納付方法
クレジットカードまたは銀行振込など
買受代金納付方法
銀行振込
オークション種別
インターネット公売
実施方法
入札形式
執行機関名称
南魚沼地域振興局県税部収税課
売却区分番号
9-7
支払い方法
銀行振込

物件情報

物件の種類
区分所有建物
物件の所在
新潟県

不動産の基本情報

登記簿の表示
一棟の建物の表示
所在 南魚沼郡湯沢町大字三国字上ヨリヘ205番地11
建物の名称
構造 鉄骨鉄筋コンクリート・鉄筋コンクリート造陸屋根14階建

専有部分の建物の表示
家屋番号 大字三国205番11の612
建物の名称 612号
種類 居宅
構造 鉄骨鉄筋コンクリート造1階建
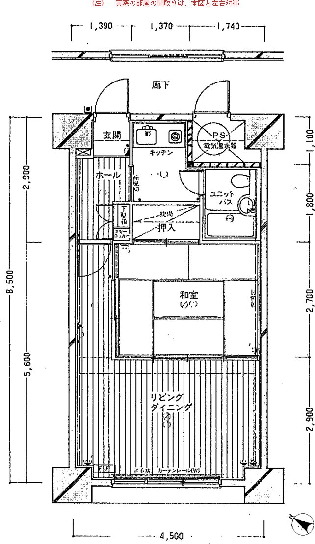
床面積 6階部分 34.36m²

敷地権の目的である土地の表示
土地の符号 1
所在及び地番 南魚沼郡湯沢町大字三国字上ヨリヘ205番11
地目 宅地
地積 3511.10m²
土地の符号 2
所在及び地番 南魚沼郡湯沢町大字三国字上ヨリヘ209番1
地目 公衆用道路
地積 109m²
土地の符号 3
所在及び地番 南魚沼郡湯沢町大字三国字上ヨリヘ209番12
地目 公衆用道路
地積 41m²
土地の符号 4
所在及び地番 南魚沼郡湯沢町大字三国字上ヨリヘ221番2
地目 公衆用道路
地積 114m²
土地の符号 5
所在及び地番 南魚沼郡湯沢町大字三国字上ヨリヘ221番4
地目 公衆用道路
地積 180m²
土地の符号 6
所在及び地番 南魚沼郡湯沢町大字三国字上ヨリヘ222番2
地目 公衆用道路
地積 8.72m²
土地の符号 7
所在及び地番 南魚沼郡湯沢町大字三国字上ヨリヘ222番3
地目 公衆用道路
地積 6.87m²
土地の符号 8
所在及び地番 南魚沼郡湯沢町大字三国字上ヨリヘ222番4
地目 公衆用道路
地積 15m²
土地の符号 9
所在及び地番 南魚沼郡湯沢町大字三国字上ヨリヘ222番5
地目 公衆用道路
地積 12m²
土地の符号 10
所在及び地番 南魚沼郡湯沢町大字三国字上ヨリヘ224番3
地目 公衆用道路
地積 8.59m²
土地の符号 11
所在及び地番 南魚沼郡湯沢町大字三国字上ヨリヘ224番5
地目 公衆用道路
地積 41m²

敷地権の表示
土地の符号 1
敷地権の種類 所有権
敷地権の割合 1万分の46
土地の符号 2・3・4・5・6・7・8・9・10・11
敷地権の種類 所有権
敷地権の割合 3万分の46
所在地
新潟県南魚沼郡湯沢町大字三国字上ヨリヘ205番地11
住居表示
新潟県南魚沼郡湯沢町大字三国205-11
交通、最寄り駅など
JR上越新幹線・JR上越線「越後湯沢駅」から約21.2km
関越自動車道「湯沢インターチェンジ」から20.1km
説明
不動産の概要
1. 公法上の規制等に関する事項
・都市計画区域外 用途指定なし
・土砂災害警戒区域
2. 対象物件の状況に関する事項
※位置図、平面図、写真等については、新潟県南魚沼地域振興局県税部収税課に備え付けてありますので、
閲覧可能です。
・地域の状況
対象物件は、新潟県と群馬県の県境付近に位置し、上越新幹線の越後湯沢駅から約21.2km、関越自動車道
の湯沢インターチェンジから約20.1kmの場所に立地しており、近隣にはスキー場があり四季の観光が楽しめる
リゾートマンションです。
・道路の状況
対象物件は、西側幅員約6mの舗装された私道に接しています。
・建物の状況
建築年月 1990年 (平成2年) 11月 総戸数214戸
専有面積 34.36m² (不動産登記簿の表示による)
専有部分の主な設備の状況
・電 気:東北電力
・ガス:なし
・給排水:飲用水 専用水道 (井戸水)
:排水 敷地内浄化槽
・テレビ:地上デジタル・BS
・インターネット:光回線 (VDSL、個別契約) ※契約数に上限あり ロビー・2階談話室でWi-Fi使用可。
※各設備は、個別に契約・料金が必要となるものがあります。
※各設備、器具の作動確認は行っておりません。設備に不備がある場合、修繕費は買受人の負担になります。
共有部分の主な設備の状況
・出入口:オートロック (通年24時間)
・駐車場:屋外:夏期80台、冬期60台 屋内:14台 (各有料)
・大浴場:沸かし湯 (無料) ※サウナは現在休止中
・ペット:可 (合計2頭羽を限度・体高30cm以下 理事長へ申請必要 持込規則有)
・その他:洗濯機・乾燥機 (各3台) 、スキーロッカー (1部屋に1個 専用鍵有 無料) 、卓球ルーム (無料)
3. 対象物件の利用状況
・令和7年7月7日現在、対象物件に居住者等はいません。
4. 最寄り駅
・JR上越新幹線、JR上越線「越後湯沢駅」
5. 特記事項
・対象物件の管理は「管理組合」から委託を受けた「株式会社エンゼルコミュニティ」が
行っており、管理人が常駐しています。
※管理規約の写しは新潟県南魚沼地域振興局県税部収税課に備え付けてありますので、閲覧可能です。
・当該物件の管理費は、月額22,360円 (令和7年12月4日現在) です。
その他、固定資産税 (毎年) 、登録免許税 (1回) 、不動産取得税 (1回) がかかります。
・管理費の未納がありますが、管理組合法人は、本件公売に関し未納管理費・修繕積立金等の債権を放棄
しています。
・買受人が取得時・取得後に負担すべき税金等の概算金額は次のとおりです。
・固定資産税 (取得後毎年) 約54,500円/年額 ○登録免許税 (取得時1回) 約79,400円
・不動産取得税 (取得時1回) 約155,100円
・管理費等22,360円/月額 (支払方法は株式会社エンゼルコミュニティにお問合せください。)
※上記金額はあくまでも概算金額であり、実際の金額とは異なる場合があります。
・部屋入口等の鍵は前所有者から引き渡しを受けていません。鍵の交換にかかる費用は買受人の負担になり
ます。
・対象物件内に動産があった場合、これらは公売対象外になります。
・当該物件内の動産類やゴミの撤去、占有者等に対しての明け渡し請求などは、買受人に行っていただき
ます。
・土地の境界については隣接地所有者と、接面道路 (私道) の利用については道路所有者とそれぞれ協議して
ください。
・土壌汚染やアスベストなどに関する専門的調査は行っていません。
留意事項
・一度行った入札は、変更又は取消しはできません。
・公売財産に係る県税の完納の事実が買受代金納付の前に証明されたとき、又は買受代金納付後であっても取り消すべき重大な理由があるときは売却決定を取り消します。
・公売財産が不動産の場合、売却決定の日時までに、買受人が暴力団等に該当しないことの調査の結果が明らかにならない場合は、売却決定の日時及び買受代金の納付の期限を変更することがあります。
・公売財産の取得時期は、買受代金の納付があったときです。なお、許可及び承認を必要とする財産はそれを得たときになります。また、引渡しを行う財産の引渡しは、買受代金納付時点の現況有姿により行います。
・県は、公売の目的物の種類又は品質に関する不適合には担保責任を負いません。
・公売財産が不動産の場合、県は引渡の義務を負いません。公売財産内の動産類やゴミなどの撤去、占有者の立退き、前所有者からの鍵の引渡などは買受人で行ってください。
・公売財産の権利移転について登記 (登録) を要するものについては、登録免許税額に相当する印紙又は領収証書を買受代金納付期限までに提出してください。
・その他については、新潟県インターネット公売ガイドラインによります。(ガイドラインは新潟県税務課のインターネット・サイトに掲載しています。また、新潟県南魚沼地域振興局県税部収税課に備え付けてあります。)

土地の情報

土地面積 (㎡)
3511.1 (登記簿)
土地権利
敷地権
土地持分
46/10000
地目
宅地
都市計画地域
都市計画区域外
用途地域
指定なし
その他法令などの規制
土砂災害警戒区域
幅員、接道状況
西側幅員約6mの舗装された私道に接しています。

建物の情報

建物の名称
専有面積
34.36m² (10.4坪)
構造
鉄筋鉄骨コンクリート
建築年月
平成2年 (1990年) 11月
階建/階
14階建/6階
総戸数
214戸
間取り
2K

物件に関するお問い合わせ先

出品行政機関
新潟県南魚沼地域振興局
担当部署
県税部収税課
メールアドレス
ngt111620@pref.niigata.lg.jp
電話
025-772-2665
受付時間
平日午前8時30分から午後5時まで (祝祭日を除く)
備考
-

過去の出品

1回目
9万円 (2024.02.13不売)
2回目
9万円 (2024.02.13不売)
3回目
8万円 (2025.09.24売却)
4回目
8万円 (2025.09.24不売)
5回目
8万円 (2025.09.24不売)
出典:官公庁オークション - 【区分所有建物】苗場スキー場近く ダイアパレス苗場6階 2K 34.36㎡【再公売】:新潟県のインターネット公売物件詳細

最寄り駅・周辺地図

最寄り駅が見つかりませんでした

新潟県南魚沼郡湯沢町 マンションの販売価格

取引平均-

近隣のマンション落札価格

入札数{{ point.bids }}入札数?{{ point.base }}{{ point.sold }}{{ point.sqm.toLocaleString() }}m²築{{ point.age }}年
周辺にはマンションの落札履歴がありません。地図をドラッグして範囲や縮尺を変えてお試しください