2,156 物件出品中!

千葉県市川市新井 南行徳駅6分 「ライオンズマンション市川」の公売物件
¥ 5,900,000円 マンション 40m²

千葉県市川市新井 南行徳駅6分 「ライオンズマンション市川」の国税庁公売物件

不売になりました
2026年3月18日(水)

売却結果

実施局署
東京国税局
公売公告番号
62号
公告日
令和8年1月29日
入札期間
令和8年3月3日 から 令和8年3月12日
公売の方法
期間入札
開札期日
令和8年3月17日午前10時00分
売却決定の日時
令和8年4月7日午前10時00分
次順位買受申込者に対する売却決定の日は、国税徴収法第113条第2項に定める日となります。
売却決定の場所
東京国税局
売却区分番号
3329-1
入札者等の区分
入札なし

期間入札 () 310万円 値下げ

実施局署
東京 国税局
見積価額
5,900,000円
公売の方法
期間入札
公売公告番号
62号
公売保証金
600,000円
売却区分番号
3329-1
公売保証金の提供方法
現金等
入札期間
令和8年3月3日午前9時00分 から 令和8年3月12日午後5時00分
入札の場所
東京国税局
必要書類の提出期限 (電子入札の場合)
令和8年3月10日午後5時00分
公売保証金の納付期限
令和8年3月10日午後5時00分
開札期日
令和8年3月17日午前10時00分
開札の場所
東京国税局
買受代金納付期限
令和8年4月7日午後3時00分
売却決定の日時
令和8年4月7日午前10時00分
売却決定の場所
東京国税局
追加入札期間
令和8年3月23日午前9時00分 から 令和8年3月27日午後5時00分
追加入札開札期日
令和8年3月30日午前10時00分
開札の場所
東京国税局
買受代金納付期限
令和8年4月14日午後3時00分
売却決定の日時
令和8年4月14日午前10時00分
売却決定の場所
東京国税局
住居表示等
千葉県市川市新井3丁目21番20 502号
交通機関
東京メトロ 東西線 南行徳駅 徒歩 9分
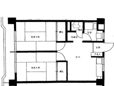
床面積合計
40.19m² (12.2坪)
主たる種類
居宅

詳細情報 (個別)

財産番号
1
所在地 (登記簿表示内容)
千葉県市川市新井三丁目21番地1
建物の名称 (登記簿表示内容)
構造 (登記簿表示内容)
鉄筋コンクリート造陸屋根7階建
床面積 (登記簿表示内容)
公開終了 446.20m² (135.0坪)
公開終了 446.20m² (135.0坪)
公開終了 446.20m² (135.0坪)
公開終了 446.20m² (135.0坪)
公開終了 446.20m² (135.0坪)
公開終了 394.73m² (119.4坪)
公開終了 364.48m² (110.3坪)
地盤・地勢
ほぼ平坦地
接道状況
北東側 幅員約10メートル舗装市道
北西側 幅員約6メートル舗装市道 各々ほぼ等高接面
土地の符号 (登記簿表示内容)
1
所在 (登記簿表示内容)
千葉県市川市新井三丁目21番1
地目 (登記簿表示内容)
宅地
地積 (登記簿表示内容)
1,147.89m²
家屋番号 (登記簿表示内容)
新井三丁目 21番1の46
建物番号 (登記簿表示内容)
502
種類 (登記簿表示内容)
居宅
構造 (登記簿表示内容)
鉄筋コンクリート造1階建
床面積 (登記簿表示内容)
公開終了 40.19m² (12.2坪)
使用状況
昭和48年頃建築の「」内に所在
所有者が居宅として使用
管理状況
「株式会社大京アステージ」あて管理委託
管理費 (支払期日:前月末日) 11,640円
修繕積立金 (支払期日:前月末日) 14,030円
未納管理費等 (令和7年12月1日現在) 748,707円
(管理組合の申立てによると、管理規約に定める遅延損害金等の支払いを別途、要する。)
管理規約の内容については、「株式会社大京アステージ」にお問い合わせください。
(連絡先) 株式会社大京アステージ くらしサポートデスク
電話番号0120-264-406
留意事項
公売は現況有姿により行うものであるため、次の一般的事項を十分ご理解の上、公売へご参加ください。
1. 公売財産については、あらかじめその現況及び関係公簿等を確認してください。
2. 公売財産に財産の種類又は品質に関する不適合があっても、執行機関 (国) は、担保責任を負いません。
3. 執行機関 (国) は、公売財産の引渡義務を負わないため、使用者又は占有者に対して明渡しを求める場合や不動産内にある動産の処理などはすべて買受人の責任において行うことになります。
4. 土地の境界については隣接地所有者と、接面道路 (私道) の利用については道路所有者とそれぞれ協議してください。
5. 土壌汚染やアスベストなどに関する専門的な調査は行っておりません。

なお、売却区分番号内に複数の財産 (財産が一つで所有者を異にする場合を含む。) があるものについては、国税徴収法第89条第3項の規定に基づき、一括換価の方法により公売を行います。
敷地権の表示 - 土地の符号 (登記簿表示内容)
1
敷地権の表示 - 敷地権の種類 (登記簿表示内容)
所有権
敷地権の表示 - 敷地権の割合 (登記簿表示内容)
10000分の169

詳細情報 (共通)

公法上の規制
第2種中高層住居専用地域
第1種高度地区
宅地造成等工事規制区域
日影規制 (3時間-2時間)
特記事項
建物登記床面積合計の土地登記面積に対する割合は指定容積率を超えている。
その他事項
公売財産の売却決定は、最高価申込者に係る入札価額をもって行います。
換価制限のお知らせ
この物件については、不服申立中であることから、国税通則法第105条第1項ただし書の規定により、売却決定の日時である令和8年4月7日(火) 午前10時までに換価制限が解除されない場合は、同日時の売却決定は行いませんので、ご注意ください。

物件に関するお問い合せ先

お問い合せ先
東京 国税局
お問い合せの際には、開札日(令和8年3月17日)と売却区分番号(3329-1)をお申出の上ご照会ください。
担当部署名
特別整理総括第二課
郵便番号
104-8449
所在地
中央区築地5丁目3番1号
電話番号
03-3542-2111
内線
3305、3306、3307
電話受付時間
平日午前9時から午後5時まで

過去の出品

1回目
930万円 (2023.10.05売却)
2回目
930万円 (2024.02.21売却)
3回目
900万円 (2025.10.08不売)
出典:国税庁ホームページ - (3329-1 千葉県市川市) 区分所有建物詳細 | 公売情報

最寄り駅・周辺地図

千葉県市川市 マンションの販売価格

取引平均-

近隣のマンション落札価格

入札数{{ point.bids }}入札数1{{ point.base }}{{ point.sold }}{{ point.sqm.toLocaleString() }}m²築{{ point.age }}年
周辺にはマンションの落札履歴がありません。地図をドラッグして範囲や縮尺を変えてお試しください