1,764 物件出品中!

福岡県福岡市東区香椎照葉 香椎花園前駅18分 「アイタワー」の公売物件
¥ 27,300,000円 マンション 84m²

福岡県福岡市東区香椎照葉 香椎花園前駅18分 「アイタワー」の国税庁公売物件

35,111,112円
で売却されました
2026年4月22日(水)

売却結果

実施局署
東京国税局
公売公告番号
68号
公告日
令和8年2月25日
入札期間
令和8年4月6日 から 令和8年4月15日
公売の方法
期間入札
開札期日
令和8年4月21日午前10時00分
売却決定の日時
令和8年5月12日午前10時00分
次順位買受申込者に対する売却決定の日は、国税徴収法第113条第2項に定める日となります。
売却決定の場所
東京国税局
売却区分番号
3999-1
入札者等の区分
最高価申込者
入札(売却)価額
35,111,112円

期間入札 ()

実施局署
東京 国税局
見積価額
27,300,000円
公売の方法
期間入札
公売公告番号
68号
公売保証金
2,800,000円
売却区分番号
3999-1
公売保証金の提供方法
現金等
入札期間
令和8年4月6日午前9時00分 から 令和8年4月15日午後5時00分
入札の場所
東京国税局
必要書類の提出期限 (電子入札の場合)
令和8年04月13日午後5時00分
公売保証金の納付期限
令和8年4月13日午後5時00分
開札期日
令和8年4月21日午前10時00分
開札の場所
東京国税局
買受代金納付期限
令和8年5月12日午後3時00分
売却決定の日時
令和8年5月12日午前10時00分
売却決定の場所
東京国税局
追加入札期間
令和8年4月27日午前9時00分 から 令和8年5月8日午後5時00分
追加入札開札期日
令和8年5月11日午前10時00分
開札の場所
東京国税局
買受代金納付期限
令和8年5月26日午後3時00分
売却決定の日時
令和8年5月26日午前10時00分
売却決定の場所
東京国税局
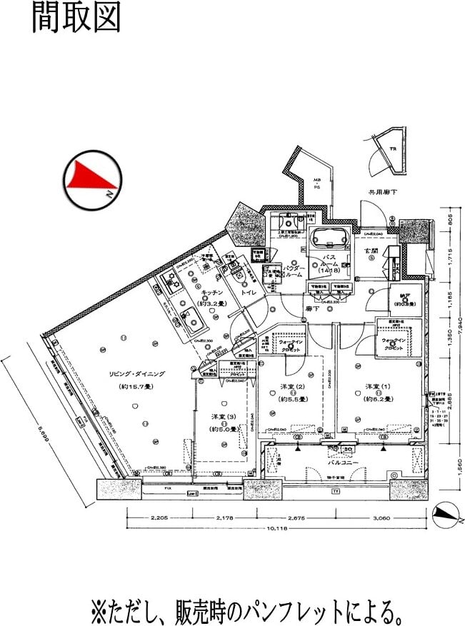
住居表示等
福岡県福岡市東区香椎照葉3丁目2番7-407号
交通機関
西日本鉄道 貝塚線 西香椎駅 北西方約1.8キロメートル
床面積合計
84.12m² (25.4坪)
主たる種類
居宅

詳細情報 (個別)

財産番号
1
所在地 (登記簿表示内容)
福岡県福岡市東区香椎照葉三丁目 26番地30
建物の名称 (登記簿表示内容)
構造 (登記簿表示内容)
鉄筋コンクリート造陸屋根45階建
床面積 (登記簿表示内容)
公開終了 563.08m² (170.3坪)
公開終了 514.86m² (155.7坪)
公開終了 722.64m² (218.6坪)
公開終了 722.64m² (218.6坪)
公開終了 722.64m² (218.6坪)
公開終了 722.64m² (218.6坪)
公開終了 722.64m² (218.6坪)
公開終了 722.64m² (218.6坪)
公開終了 722.64m² (218.6坪)
公開終了 722.64m² (218.6坪)
公開終了 722.64m² (218.6坪)
公開終了 722.64m² (218.6坪)
公開終了 722.64m² (218.6坪)
公開終了 722.64m² (218.6坪)
公開終了 722.64m² (218.6坪)
公開終了 722.64m² (218.6坪)
公開終了 722.64m² (218.6坪)
公開終了 722.64m² (218.6坪)
公開終了 722.64m² (218.6坪)
公開終了 722.64m² (218.6坪)
公開終了 722.64m² (218.6坪)
公開終了 722.64m² (218.6坪)
公開終了 722.64m² (218.6坪)
公開終了 722.64m² (218.6坪)
公開終了 722.64m² (218.6坪)
公開終了 722.64m² (218.6坪)
公開終了 722.64m² (218.6坪)
公開終了 722.64m² (218.6坪)
公開終了 722.64m² (218.6坪)
公開終了 722.64m² (218.6坪)
公開終了 722.64m² (218.6坪)
公開終了 722.64m² (218.6坪)
公開終了 722.64m² (218.6坪)
公開終了 722.64m² (218.6坪)
公開終了 722.64m² (218.6坪)
公開終了 722.64m² (218.6坪)
公開終了 722.64m² (218.6坪)
公開終了 722.64m² (218.6坪)
公開終了 722.64m² (218.6坪)
公開終了 722.64m² (218.6坪)
公開終了 722.64m² (218.6坪)
公開終了 722.64m² (218.6坪)
公開終了 722.64m² (218.6坪)
公開終了 722.64m² (218.6坪)
公開終了 150.60m² (45.6坪)
地盤・地勢
ほぼ平坦地
接道状況
南東側 幅員約15メートル舗装市道
南西側 幅員約11メートル舗装市道 各々ほぼ等高接面
土地の符号 (登記簿表示内容)
1
所在 (登記簿表示内容)
福岡県福岡市東区香椎照葉三丁目26番30
地目 (登記簿表示内容)
宅地
地積 (登記簿表示内容)
7,484.36m²
家屋番号 (登記簿表示内容)
香椎照葉三丁目 26番30の407
建物番号 (登記簿表示内容)
407
種類 (登記簿表示内容)
居宅
構造 (登記簿表示内容)
鉄筋コンクリート造1階建
床面積 (登記簿表示内容)
公開終了 84.12m² (25.4坪)
使用状況
平成28年頃建築の「」内に所在
第三者が居宅として使用
貸借関係等の内容は不明
管理状況
「西鉄不動産株式会社」あて管理委託
月額管理費 (支払期日:前月27日) 12,000円
修繕積立金 (支払期日:前月27日) 6,940円
駐車場使用料 (支払期日:前月27日) 12,000円
駐輪場使用料 (支払期日:前月27日) 200円
テレビ使用料 (支払期日:前月27日) 330円
インターネット使用料 (支払期日:前月27日) 1,100円
未納管理費等 (令和7年12月19日現在) 65,140円
管理規約の内容については、「西鉄不動産株式会社」にお問い合わせください。
(連絡先) 西鉄不動産株式会社 マンション管理事業部
電話番号092-724-5556
留意事項
公売は現況有姿により行うものであるため、次の一般的事項を十分ご理解の上、公売へご参加ください。
1. 公売財産については、あらかじめその現況及び関係公簿等を確認してください。
2. 公売財産に財産の種類又は品質に関する不適合があっても、執行機関 (国) は、担保責任を負いません。
3. 執行機関 (国) は、公売財産の引渡義務を負わないため、使用者又は占有者に対して明渡しを求める場合や不動産内にある動産の処理などはすべて買受人の責任において行うことになります。
4. 土地の境界については隣接地所有者と、接面道路 (私道) の利用については道路所有者とそれぞれ協議してください。
5. 土壌汚染やアスベストなどに関する専門的な調査は行っておりません。

なお、売却区分番号内に複数の財産 (財産が一つで所有者を異にする場合を含む。) があるものについては、国税徴収法第89条第3項の規定に基づき、一括換価の方法により公売を行います。
敷地権の表示 - 土地の符号 (登記簿表示内容)
1
敷地権の表示 - 敷地権の種類 (登記簿表示内容)
所有権
敷地権の表示 - 敷地権の割合 (登記簿表示内容)
2486868分の8681

詳細情報 (共通)

公法上の規制
第二種住居地域
日影規制 (5時間-3時間)
香椎照葉三丁目東地区地区計画
香椎照葉三丁目東地区建築協定
香椎照葉三丁目東地区緑地協定
都市景観形成地区 (アイランドシティ香椎照葉地区・産業複合地区)
屋外広告物地域 (商業・沿道系地域)
特記事項
対象物件1については、消費税法施工令第70条の12第5項の規定に基づき、買受人の求めに応じて、東京国税局が適格請求書を交付します。なお、「適格請求書交付対象買受代金 (税込)」は、入札価額に「見積価額に占める課税資産の価額の割合 (以下「課税資産価額割合」といいます。)」及び「自用と家事の用途に共通して使用する対象物件1の事業としての部分の割合 (以下「事業専用割合」といいます。)」を乗じて算出します。
課税資産価額割合 79.58%
事業専用割合 100%
その他事項
公売財産の売却決定は、最高価申込者に係る入札価額をもって行います。

物件に関するお問い合せ先

お問い合せ先
東京 国税局
お問い合せの際には、開札日(令和8年4月21日)と売却区分番号(3999-1)をお申出の上ご照会ください。
担当部署名
特別整理総括第二課
郵便番号
104-8449
所在地
中央区築地5丁目3番1号
電話番号
03-3542-2111
内線
3305、3306、3307
電話受付時間
平日午前9時から午後5時まで

過去の出品

1回目
2,630万円 (2024.08.08売却)
出典:国税庁ホームページ - (3999-1 福岡県福岡市東区) 区分所有建物詳細 | 公売情報

最寄り駅・周辺地図

福岡県福岡市東区 マンションの販売価格

取引平均-

近隣のマンション落札価格

入札数{{ point.bids }}入札数1{{ point.base }}{{ point.sold }}{{ point.sqm.toLocaleString() }}m²築{{ point.age }}年
周辺にはマンションの落札履歴がありません。地図をドラッグして範囲や縮尺を変えてお試しください