2,192 物件出品中!

兵庫県宝塚市光ガ丘 宝塚駅18分の公売物件
¥ 終了 戸建て 122m²

兵庫県宝塚市光ガ丘 宝塚駅18分の官公庁公売物件

売却されました
2025年7月1日(火)

インターネット公売 (初出品)

価額情報

落札価額 (最高入札価額)
公開終了
落札者 (最高価買受申込者)
snaWCO912833
入札件数
1
次順位買受申込価額
公開終了
次順位買受申込者
該当なし
見積価額
公開終了
公売保証金
公開終了

スケジュール

参加申し込み受付期間
2025年5月30日13時0分 〜 2025年6月17日23時0分
入札期間
2025年6月24日13時0分 〜 2025年7月1日13時0分
買受代金納付期限
2025年7月22日14時30分

代金納付方法

公売保証金納付方法
クレジットカードまたは銀行振込など
買受代金納付方法
銀行振込 直接持参
オークション種別
インターネット公売
実施方法
入札形式
執行機関名称
宝塚市
売却区分番号
001
支払い方法
銀行振込 直接持参

物件情報

物件の種類
土地付建物
物件の所在
公開終了

不動産の基本情報

登記簿の表示
公開終了
所在地
公開終了
住居表示
公開終了
交通、最寄り駅など
阪急今津線「逆瀬川」駅から約2.4km
現況
所有者が居住中
説明
入札について
入札参加を希望される方は、仮申し込み後、宝塚市のホームページ https://www.city.takarazuka.hyogo.jp/kurashi/1000029/1001232.htmlから下記の提出必要書類をダウンロードして令和7年6月20日(金) までに送付してください。(締切日必着)
必要書類の確認後、申し込みの承認を行います。
※期日までに書類が届かなければ入札に参加できませんのでご注意ください。
提出必要書類
・陳述書 (個人用 https://www.city.takarazuka.hyogo.jp/_res/projects/default_project/_page_/001/001/232/chinjyutusyo-kojin.pdf、法人用 https://www.city.takarazuka.hyogo.jp/_res/projects/default_project/_page_/001/001/232/chinjyutusyo-houjin.pdf
・公売保証金納付書兼支払請求書兼口座振替依頼書 https://www.city.takarazuka.hyogo.jp/_res/projects/default_project/_page_/001/001/232/koubaihosyokinnsiharai.pdf
(送付先) 〒665-8665 兵庫県宝塚市東洋町1-1 宝塚市役所 市税収納課 公売担当
公売保証金を銀行振込で支払いされる場合
仮申し込みの完了後、仮申し込み完了メールが送信されます。
送信されたメールに記載されている宝塚市の指定する口座へ、令和7年6月20日(金) までに公売保証金760,000円を入札参加申込者の名義でお振込みください。
公売保証金の振込手数料は申込者の負担となります。
※公売保証金の振込名義が申込者と相違しますと、入金が確認できません。
※公売保証金の入金が確認できない場合は本申込が完了せず、入札に参加できませんのでご注意ください。
参加資格、注意事項等について宝塚市インターネット公売ガイドラインをよくお読みのうえ、入札に参加してください。
宝塚市インターネット公売ガイドライン https://www.city.takarazuka.hyogo.jp/_res/projects/default_project/_page_/001/001/232/guideline3.pdf
・留意事項
(1) 入札参加者においては、入札前に本物件に関する概要および現状をよく理解しているものとし、これらに起因する一切の責を宝塚市は負いません。
(2) 宝塚市は公売財産について引き渡しの義務、契約不適合責任を負いません。
(3) 買受代金を納付した時に危険負担は買受人に移転します。
(4) 隣地等との境界確定の必要があるときは、買受人で行ってください。宝塚市は一切関与しません。
(5) 残置物の撤去については所有者と協議してください。宝塚市は一切関与しません。
(6) 所有者が居住中です。立ち退き交渉等に宝塚市は一切関与しません。
(7) 権利移転に伴う費用 (移転登記に係る登録免許税、登記嘱託書の郵送料等) は、買受人の負担となります。
(8) 買受代金納付期限までに代金の納付が確認できた場合、必要書類の提出をもって権利移転の手続き (不動産登記の嘱託) を行います。
(9) 個人情報保護のため、公売財産の固定資産税・都市計画税を含め、所有者の個人情報はお伝えできません。落札後も同様です。
(10) 土地付き建物は混在財産 (非課税財産と課税財産が混在) ですので、見積価額にすでに消費税相当額を含んでいます。
(11) 落札後についても、売却決定前に公売財産差押えにかかる滞納税が完納となった場合は、最高価申込者の決定等の取り消しを行います。

土地の情報

土地面積 (㎡)
506.15 (登記簿)
土地権利
所有権
土地持分
1/1
地目
宅地
都市計画地域
市街化区域
用途地域
第一種低層住居専用地域 (住居と一部公共施設のみ建築可能)
建ぺい率 (%)
50
容積率 (%)
100
高度地区 (種)
1
地勢など
・間口約48.6m、奥行約20m、規模506.15m²、ほぼ台形
・路面より5m低く接面する南西向きの二方路地
・対象地は傾斜地を含み、有効宅地部分は約150m² (概測)
幅員、接道状況
・幅員約6mのアスファルト舗装の市道に接面 (建築基準法第42条1項1号)
・北側背面道は幅員約4mの市道。当該背面道は建築基準法上の道路ではありません。
供給処理施設
・上水道、公共下水道、都市ガスはいずれも整備済
その他土地に関する物件情報
・土壌汚染対策法上の区域指定、水質汚濁防止法上の有害物質使用特定施設に該当しません。
・周知の埋蔵文化財包蔵地に該当しません。
・隣接地から又は隣接地への重大な越境物等はありません。
・土砂災害特別警戒区域、土砂災害警戒区域の指定はありません。

建物の情報

延床面積
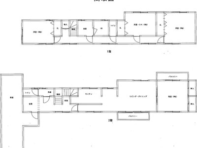
121.50m² (36.8坪)
構造
木造
建築年月
平成18年 (2006年) 4月
階建/階
2
間取り
4LDK
その他建物に関する物件情報
・建物の使用資材について外壁はサイディング、吹付塗装等、屋根は瓦葺、天井及び壁はビニールクロス、杉板等、床はフローリング、畳等です。
・アスベスト含有建材の使用の可能性について専門家による調査は行われていません。個人住宅であり可能性は低いと考えられますが、平成18年9月1日以前の建物であることから使用の可能性を否定できません。
・兵庫県環境整備課備付け資料により、PCB特措法等によるPCBに関する届出はないことを確認しています。
・建築基準法上の新耐震基準 (昭和56年6月) 以降の建物です。
・築後約19年経過しており、躯体、外壁、内装等の劣化・汚れ等は経年相当です。

物件に関するお問い合わせ先

出品行政機関
宝塚市役所
担当部署
市税収納課 公売担当
メールアドレス
m-takarazuka0006@city.takarazuka.lg.jp
電話
0797-71-1141
(内線 2469)
備考
-
出典:官公庁オークション - 【土地付建物】宝塚市光ガ丘2丁目 木造瓦葺2階建 一般住宅:宝塚市のインターネット公売物件詳細

最寄り駅・周辺地図

兵庫県宝塚市 戸建ての販売価格

取引平均-