2,515 物件入札可能!

新潟県南魚沼郡湯沢町 「ファミール・ヴィラ苗場」の公売物件
¥ 422,000円 マンション 64m²

新潟県南魚沼郡湯沢町 「ファミール・ヴィラ苗場」の公売物件

550,000円
で売却されました
2025年11月4日(火)

インターネット公売 () 27万円 値下げ

価額情報

落札価額 (最高入札価額)
550,000円
落札者 (最高価買受申込者)
tzaWRI541812
入札件数
1
次順位買受申込価額
-円
次順位買受申込者
該当なし
見積価額
422,000円
公売保証金
50,000円

スケジュール

参加申し込み受付期間
2025年10月3日13時0分 〜 2025年10月21日23時0分
入札期間
2025年10月28日13時0分 〜 2025年11月4日13時0分
買受代金納付期限
2025年11月25日14時30分

代金納付方法

公売保証金納付方法
クレジットカードまたは銀行振込など
買受代金納付方法
銀行振込 現金書留 郵便為替 直接持参
オークション種別
インターネット公売
実施方法
入札形式
執行機関名称
湯沢町
売却区分番号
7-4-2
支払い方法
銀行振込 現金書留 郵便為替 直接持参

物件情報

物件の種類
区分所有建物
物件の所在
新潟県

不動産の基本情報

登記簿の表示
不動産の表示 (不動産登記簿の表示による)
一棟の建物の表示
所在 南魚沼郡湯沢町大字三国字上ノ山 304番地3
建物の名称
構造 鉄骨鉄筋コンクリート・鉄筋コンクリート造コンクリート屋根14階建

専有部分の建物の表示
不動産番号 1106000734949
家屋 番号 大字三国 304番3の919
建物の名称 919号
種類 居宅
構造 鉄筋コンクリート造1階建
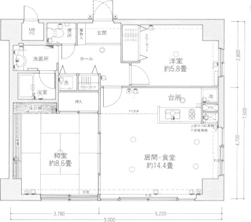
床面積 9階部分 63.58 m²

敷地権の目的である土地の表示
符号 1
所在及び地番 南魚沼郡湯沢町大字三国字上ノ山304番3
地目 宅地
地積 5131.76 m²
符号 2
所在及び地番 南魚沼郡湯沢町大字三国字東裏341番2
地目 公衆用道路
地積 104.00 m²
符号 3
所在及び地番 南魚沼郡湯沢町大字三国字上ノ山349番6
地目 宅地
地積 6.31 m²
符号 4
所在及び地番 南魚沼郡湯沢町大字三国字上ノ山349番7
地目 宅地
地積 52.17 m²

敷地権の表示
符号 1
敷地権の種類 所有権
敷地権の割合 89万8620分の6750
符号 2
敷地権の種類 所有権
敷地権の割合 359万4480分の6750
符号 3
敷地権の種類 所有権
敷地権の割合 179万7240分の6750
符号 4
敷地権の種類 所有権
敷地権の割合 89万8620分の6750
所在地
新潟県南魚沼郡湯沢町
住居表示
新潟県住居表示未実施
交通、最寄り駅など
上越新幹線・上越線:越後湯沢駅から約21km
関越自動車道:湯沢インターチェンジから約22km
現況
令和6年12月6日現在、対象物件に居住者はいません。
その他事項
混在財産
説明
湯沢町は新潟県の南端に位置し、日本百名山の谷川岳や苗場山などに囲まれた人口約8千人の自然豊かな山あいの町になります。冬には3m近い雪に覆われる豪雪地帯でありながら、豊富な温泉やスキー場など観光産業を中心に発展し、川端康成の小説「雪国」の舞台として知られています。近年ではフジロックフェスティバル、FISアルペンスキーワールドカップ等の大型イベントが開催され、アジア圏を中心としたインバウンドの増加もあり雪国観光圏の中核を担っており、首都圏からの移住先としても注目を集めています。

土地の情報

土地面積 (㎡)
5131.76 (登記簿)
土地権利
敷地権
土地持分
6750/898620
地目
宅地
都市計画地域
都市計画区域外
用途地域
指定なし
防火地域
不明
その他法令などの規制
自然公園法に基づく規制 (上信越高原国立公園普通地域)
湯沢町宅地開発及び中高層建築物指導要綱
土砂災害警戒区域
幅員、接道状況
南西側:私道 幅員:約5.0m

建物の情報

建物の名称
専有面積
63.58m² (19.2坪)
構造
鉄筋鉄骨コンクリート
建築年月
昭和64年/平成元年 (1989年) 11月
階建/階
14階建/9階
総戸数
222戸
間取り
2LDK
その他建物に関する物件情報
[専有部分の主な設備の状況]
・電 気:各戸メーターを経て供給/東北電力株式会社
・ガス:LPG集中
・給排水:給水 専用水道 (井戸水) 排水 敷地内浄化槽
・給 湯:各戸LPG集中による給湯設備設置
・テレビ:地デジ・BS
・インターネット:マンション独自の光接続分配Wi-Fiを各住戸で契約可
(初期費用15,000円、月額300円) 、2階ラウンジでWi-Fi使用可能 (無料・6時〜22時まで)。

[共有部分の主な設備の状況]
・駐車場:屋外47台 (無料)
・駐輪場:屋内8台 (冬季は4台) (無料)
・大浴場:沸かし湯・サウナ付 (無料) 24時間営業
[サウナ] スキーシーズン中は24時間営業
※4月〜9月 運用停止
[清掃時間] 10時〜12時、金曜のみ9時〜16時
※年末年始・ゴールデンウィーク・夏休み・祝日等で変更あり。
・プール (クア):隣接・ファミールヴィラ苗場タワー12m温水プール利用可能 (500円/回)
夏期:13:00〜16:30、冬期:13:00〜17:30
※ファミールヴィラ苗場タワーフロントへ直接電話して予約
・レストラン:なし
・スポーツルーム:9時〜21時 (無料)
・オーナー専用ゲストルーム:2部屋 (定員6名) 4,000円/泊・1部屋、リネン800円/1組
・コインランドリー:洗濯機・乾燥機 (各3台・有料)
・スキーロッカー:1部屋1個 (専用鍵あり・無料) ※チューンナップコーナーあり
・その他共用施設:ビリヤード (500円/時間) 、卓球 (200円/時間) 、イベントルーム (会議室1,000円/時間) 、カラオケルーム (500円/時間) 、談話室 (無料) 、エキストラロッカー (20,000円/1年契約)
※トップシーズンのみ苗場スキー場までバス運行 (無料)
・ペット:不可
[特記事項]
・対象物件の管理は、管理組合法人より管理委託を受けた株式会社エンゼルが行っており、管理人が常駐しています。
・管理組合法人からの申立てによると、管理費等は月額52,215円 (内訳:管理費33,750円、修繕積立金17,415円、水道料1,050円) になります。
・対象物件には、令和6年12月13日現在、未納管理費等がありますが、この未納管理費等については、管理組合法人から買受人に請求することはないとの申立てがされています。また、買受人が買受代金を納付する日までに生じる未納管理費等についても請求することはありません。
・売却決定後、買受人には登録免許税、不動産取得税、固定資産税が課税されます。また、町県民税 (家屋敷税) が課税される場合があります。なお、登録免許税については買受代金と同時に納付していただきます。
・建物出入口は通年24時間オートロックとなっています。(カードキー)
・部屋入口の鍵は前所有者から引き渡しを受けていません。鍵の交換にかかる費用は買受人の負担になります。
・各設備、器具の作動確認は行っておりません。設備に不備がある場合、修繕等は買受人の負担になります。
・対象物件内に動産類があった場合、これらは公売対象外になります。
[留意事項]
公売は現況有姿により行うものであるため、次の一般的事項を十分ご理解の上、公売へご参加ください。
・あらかじめ公売財産の現況及び関係公簿等を確認した上で入札してください。
・町は公売の目的物の種類又は品質に関する不適合には担保責任を負いません。
・落札された公売財産は、いかなる理由があっても返品、交換できません。
・買受人が買受代金を全額納付したときに、買受人に危険負担が移転します。
・湯沢町は、公売財産の引渡しの義務を負いません。公売財産内の動産類やゴミなどの撤去、占有者等に対しての明け渡し請求、前所有者からの鍵の引渡しなどは、全て買受人自身で行ってください。
・土地の境界については隣接地所有者と、接面道路 (私道) の利用については道路所有者とそれぞれ協議してください。
・土壌汚染やアスベストなどに関する専門的な調査は行っていません。
・滞納金額が全額納付された場合など、公売が中止となる場合があります。

物件に関するお問い合わせ先

出品行政機関
湯沢町役場
担当部署
税務町民部税務課 収納係
メールアドレス
syuno@town.yuzawa.lg.jp
電話
025-784-3452
受付時間
平日 午前8時30分から午後5時まで
備考
-

過去の出品

1回目
69万円 (2025.08.12不売)
出典:官公庁オークション - 【価額引き下げ】湯沢町のリゾートマンション ファミール・ヴィラ苗場9階部分63.58㎡:湯沢町のインターネット公売物件詳細

最寄り駅・周辺地図

最寄り駅が見つかりませんでした

新潟県南魚沼郡湯沢町 マンションの販売価格

取引平均-

近隣のマンション落札価格

入札数{{ point.bids }}入札数?{{ point.base }}{{ point.sold }}{{ point.sqm.toLocaleString() }}m²築{{ point.age }}年
周辺にはマンションの落札履歴がありません。地図をドラッグして範囲や縮尺を変えてお試しください