2,114 物件入札可能!

新潟県南魚沼郡湯沢町 「西武ヴィラ苗場クリスタル」の公売物件
¥ 169,000円 マンション 41m²

新潟県南魚沼郡湯沢町 「西武ヴィラ苗場クリスタル」の公売物件

169,000円
で売却されました
2025年11月4日(火)

インターネット公売 ()

価額情報

落札価額 (最高入札価額)
169,000円
落札者 (最高価買受申込者)
iueYVV633156
入札件数
1
次順位買受申込価額
-円
次順位買受申込者
該当なし
見積価額
169,000円
公売保証金
20,000円

スケジュール

参加申し込み受付期間
2025年10月3日13時0分 〜 2025年10月21日23時0分
入札期間
2025年10月28日13時0分 〜 2025年11月4日13時0分
買受代金納付期限
2025年11月25日14時30分

代金納付方法

公売保証金納付方法
クレジットカードまたは銀行振込など
買受代金納付方法
銀行振込 現金書留 郵便為替 直接持参
オークション種別
インターネット公売
実施方法
入札形式
執行機関名称
湯沢町
売却区分番号
7-4-3
支払い方法
銀行振込 現金書留 郵便為替 直接持参

物件情報

物件の種類
区分所有建物
物件の所在
新潟県

不動産の基本情報

登記簿の表示
不動産の表示 (不動産登記簿の表示による)
一棟の建物の表示
所在 南魚沼郡湯沢町大字三国字横川 3番地1
建物の名称
構造 鉄骨鉄筋コンクリート造亜鉛メッキ鋼板葺地下1階付15階建

専有部分の建物の表示
家屋 番号 大字三国 3番1の380
建物の名称 1-1123
種類 居宅
構造 鉄骨鉄筋コンクリート造1階建
床面積 11階部分 40.51 m²

敷地権の目的である土地の表示
符号 1
所在及び地番 南魚沼郡湯沢町大字三国字横川 3番1
地目 宅地
地積 8098.67 m²

敷地権の表示
敷地権の種類 所有権
敷地権の割合 296万1410分の4341
所在地
新潟県南魚沼郡湯沢町
住居表示
新潟県住居表示未実施
交通、最寄り駅など
上越新幹線・上越線:越後湯沢駅から約22.9km
関越自動車道:湯沢インターチェンジから約23.5km
現況
令和7年9月24日現在、対象物件に居住者はいません。
その他事項
混在財産
説明
湯沢町は新潟県の南端に位置し、日本百名山の谷川岳や苗場山などに囲まれた人口約8千人の自然豊かな山あいの町になります。冬には3m近い雪に覆われる豪雪地帯でありながら、豊富な温泉やスキー場など観光産業を中心に発展し、川端康成の小説「雪国」の舞台として知られています。近年ではフジロックフェスティバル、FISアルペンスキーワールドカップ等の大型イベントが開催され、アジア圏を中心としたインバウンドの増加もあり雪国観光圏の中核を担っており、首都圏からの移住先としても注目を集めています。

土地の情報

土地面積 (㎡)
8098.67 (登記簿)
土地権利
敷地権
土地持分
4341/2961410
地目
宅地
都市計画地域
都市計画区域外
用途地域
指定なし
防火地域
不明
その他法令などの規制
自然公園法に基づく規制 (上信越高原国立公園普通地域)
湯沢町宅地開発及び中高層建築物指導要綱
土砂災害特別警戒区域
幅員、接道状況
東側:国道17号線 幅員:約12.5m

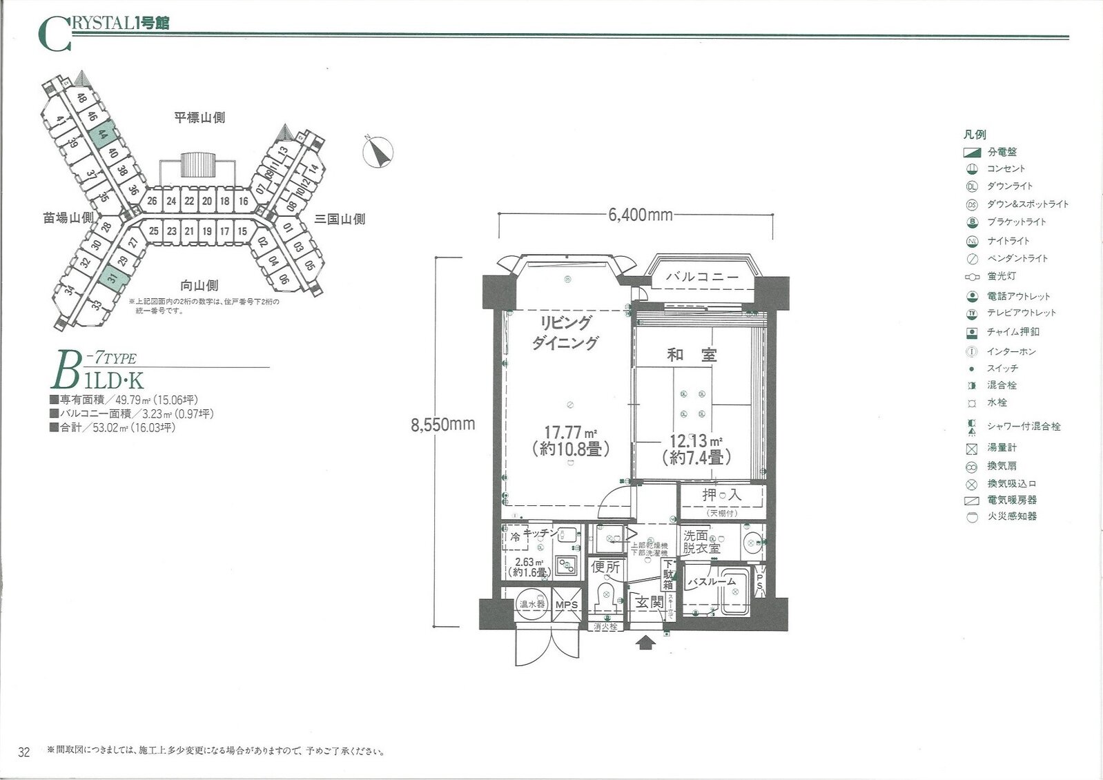
建物の情報

建物の名称
専有面積
40.51m² (12.3坪)
構造
鉄筋鉄骨コンクリート
建築年月
平成4年 (1992年) 6月
階建/階
15階建/11階
総戸数
533戸
間取り
1LDK
その他建物に関する物件情報
[専有部分の主な設備の状況]
・電気:各戸メーターを経て供給/東北電力株式会社
・ガス:なし
・給排水:給水 私設水道 (簡易水道) 排水 集中浄化槽
・給湯:各戸毎に貯湯式電気温水器設置
・テレビ:地デジ・BS
・インターネット:光回線 (各住戸に有線LAN配線済み) 、エントランスホールで無線LAN利用可
(無料・6時〜22時)
※各設備は、個別に契約・料金が必要となる場合があります。

[共有部分の主な設備の状況]
・駐車場:屋外89台・屋内 (ゲート式:専用カード) 115台 (無料)
・駐輪場:あり
・大浴場:なし
・プール (クア):なし
・レストラン:休止中・再開未定
・スポーツルーム:7時〜22時
・オーナー専用ゲストルーム:3部屋 4,000円〜/泊・1部屋、リネン1,000円/1組
※12月〜4月末の冬期間は暖房費1,000円/1人が別途必要
・コインランドリー:なし
・スキーロッカー:1部屋1個 (専用鍵あり・無料) ※チューンナップコーナーあり
・その他共用施設:ショップ、クリスタルルーム (談話室) 、キッズルーム
・ペット:不可
[特記事項]
・対象物件の管理は、管理組合から管理委託を受けた株式会社エンゼルコミュニティが行っており、管理人が常駐しています。
・管理組合からの申立てによると、管理費等は月額16,730円 (内訳:管理費11,800円、修繕積立金4,300円、スプリンクラー維持費630円) になります。
・対象物件には、令和7年9月19日現在、未納管理費等がありますが、この未納管理費等については、管理組合から買受人に請求することはないとの申立てがされています。また、買受人が買受代金を納付する日までに生じる未納管理費等についても請求することはありません。
・売却決定後、買受人には登録免許税、不動産取得税、固定資産税が課税されます。また、町県民税 (家屋敷課税) が課税される場合があります。なお、登録免許税については買受代金と同時に納付していただきます。
・建物出入口は通年24時間オートロックとなっています。
・部屋入口の鍵は前所有者から引き渡しを受けていません。鍵の交換にかかる費用は買受人の負担になります。
・各設備、器具の作動確認は行っておりません。設備に不備がある場合、修繕等は買受人の負担になります。
・対象物件内に動産類があった場合、これらは公売対象外になります。
[留意事項]
公売は現況有姿により行うものであるため、次の一般的事項を十分ご理解の上、公売へご参加ください。
・あらかじめ公売財産の現況及び関係公簿等を確認した上で入札してください。
・町は公売の目的物の種類又は品質に関する不適合には担保責任を負いません。
・落札された公売財産は、いかなる理由があっても返品、交換できません。
・買受人が買受代金を全額納付したときに、買受人に危険負担が移転します。
・湯沢町は、公売財産の引渡しの義務を負いません。公売財産内の動産類やゴミなどの撤去、占有者等に対しての明け渡し請求、前所有者からの鍵の引渡しなどは、全て買受人自身で行ってください。
・土地の境界については隣接地所有者と、接面道路 (私道) の利用については道路所有者とそれぞれ協議してください。
・土壌汚染やアスベストなどに関する専門的な調査は行っていません。
・滞納金額が全額納付された場合など、公売が中止となる場合があります。

物件に関するお問い合わせ先

出品行政機関
湯沢町役場
担当部署
税務町民部税務課 収納係
メールアドレス
syuno@town.yuzawa.lg.jp
電話
025-784-3452
受付時間
平日 午前8時30分から午後5時まで
備考
-

過去の出品

1回目
15万円 (2021.10.15中止)
2回目
13万円 (2022.09.20売却)
出典:官公庁オークション - 湯沢町のリゾートマンション 西武ヴィラ苗場クリスタル一号館11階部分40.51㎡:湯沢町のインターネット公売物件詳細

最寄り駅・周辺地図

最寄り駅が見つかりませんでした

新潟県南魚沼郡湯沢町 マンションの販売価格

取引平均-

近隣のマンション落札価格

入札数{{ point.bids }}入札数?{{ point.base }}{{ point.sold }}{{ point.sqm.toLocaleString() }}m²築{{ point.age }}年
周辺にはマンションの落札履歴がありません。地図をドラッグして範囲や縮尺を変えてお試しください