2,114 物件入札可能!

新潟県南魚沼郡湯沢町 越後中里駅14分の公売物件
¥ 1,504,000円 戸建て 287m²

新潟県南魚沼郡湯沢町 越後中里駅14分の公売物件

2,010,000円
で売却されました
2025年11月4日(火)

再出品情報があります

インターネット公売 (初出品)

価額情報

落札価額 (最高入札価額)
2,010,000円
落札者 (最高価買受申込者)
lxjZHL670605
入札件数
1
次順位買受申込価額
-円
次順位買受申込者
該当なし
見積価額
1,504,000円
公売保証金
160,000円

スケジュール

参加申し込み受付期間
2025年10月3日13時0分 〜 2025年10月21日23時0分
入札期間
2025年10月28日13時0分 〜 2025年11月4日13時0分
買受代金納付期限
2025年11月25日14時30分

代金納付方法

公売保証金納付方法
クレジットカードまたは銀行振込など
買受代金納付方法
銀行振込 現金書留 郵便為替 直接持参
オークション種別
インターネット公売
実施方法
入札形式
執行機関名称
湯沢町
売却区分番号
7-4-4
支払い方法
銀行振込 現金書留 郵便為替 直接持参

物件情報

物件の種類
その他
物件の所在
新潟県

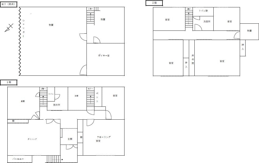
不動産の基本情報

登記簿の表示
不動産の表示 (不動産登記簿の表示による)
建物の表示
不動産番号 1106000756712
所在 南魚沼郡湯沢町大字土樽字北原3226番地3
構造 木・鉄筋コンクリート造亜鉛メッキ鋼板葺3階建
家屋 番号 3226番3
種類 居宅
床面積 1階部分 93.18m²
2階部分 113.98m²
3階部分 79.93m²
所在地
新潟県南魚沼郡湯沢町大字土樽字北原3226番地3
住居表示
新潟県住居表示未実施
交通、最寄り駅など
上越新幹線・上越線:越後湯沢駅から約6.8km
上越線:越後中里駅から約2.1km
関越自動車道:湯沢インターチェンジから約5.9km
その他事項
混在財産
説明
湯沢町は新潟県の南端に位置し、日本百名山の谷川岳や苗場山などに囲まれた人口約8千人の自然豊かな山あいの町になります。冬には3m近い雪に覆われる豪雪地帯でありながら、豊富な温泉やスキー場など観光産業を中心に発展し、川端康成の小説「雪国」の舞台として知られています。近年ではフジロックフェスティバル、FISアルペンスキーワールドカップ等の大型イベントが開催され、アジア圏を中心としたインバウンドの増加もあり雪国観光圏の中核を担っており、首都圏からの移住先としても注目を集めています。

土地の情報

土地面積 (㎡)
(登記簿)
都市計画地域
都市計画区域内非線引き区域
用途地域
指定なし
建ぺい率 (%)
70
容積率 (%)
400
防火地域
不明
その他法令などの規制
湯沢町宅地開発及び中高層建築物指導要綱
幅員、接道状況
東側:町道堰場松川線 幅員:約4m

建物の情報

建物の名称
越後湯沢の一般住宅 山小屋風の家屋
延床面積
287.09m² (86.8坪)
構造
木造
建築年月
昭和49年 (1974年) 8月
階建/階
3階建
その他建物に関する物件情報
[対象家屋の状況]
・上下水道:水道は引込み済。下水道の引込みはなし。
・都市ガス:設置なし。プロパン可。
・借地権設定は確認できず。土地所有者との契約が必要です。
・令和7年9月24日現在、対象物件に居住者はいません。
[特記事項]
・家屋入口の鍵は前所有者から引き渡しを受けていません。鍵の交換にかかる費用は買受人の負担になります。
・各設備、器具の作動確認は行っておりません。設備に不備がある場合、修繕等は買受人の負担になります。
・対象物件内に動産類があった場合、これらは公売対象外になります。
[留意事項]
公売は現況有姿により行うものであるため、次の一般的事項を十分ご理解の上、公売へご参加ください。
・あらかじめ公売財産の現況及び関係公簿等を確認した上で入札してください。
・町は公売の目的物の種類又は品質に関する不適合には担保責任を負いません。
・落札された公売財産は、いかなる理由があっても返品、交換できません。
・買受人が買受代金を全額納付したときに、買受人に危険負担が移転します。
・湯沢町は、公売財産の引渡しの義務を負いません。公売財産内の動産類やゴミなどの撤去、占有者等に対しての明け渡し請求、前所有者からの鍵の引渡しなどは、全て買受人自身で行ってください。
・土地の境界については隣接地所有者と、接面道路 (私道) の利用については道路所有者とそれぞれ協議してください。
・土壌汚染やアスベストなどに関する専門的な調査は行っていません。
・滞納金額が全額納付された場合など、公売が中止となる場合があります。

物件に関するお問い合わせ先

出品行政機関
湯沢町役場
担当部署
税務町民部税務課 収納係
メールアドレス
syuno@town.yuzawa.lg.jp
電話
025-784-3452
受付時間
平日 午前8時30分から午後5時まで
備考
-
出典:官公庁オークション - 越後湯沢の一般家屋 山小屋風の家屋 287.09㎡:湯沢町のインターネット公売物件詳細

最寄り駅・周辺地図

新潟県南魚沼郡湯沢町 戸建ての販売価格

取引平均-

近隣の戸建て落札価格

入札数{{ point.bids }}入札数?{{ point.base }}{{ point.sold }}{{ point.sqm.toLocaleString() }}m²築{{ point.age }}年
周辺には戸建ての落札履歴がありません。地図をドラッグして範囲や縮尺を変えてお試しください