1,381 物件出品中!

神奈川県秦野市平沢 秦野駅15分の公売物件
¥ 13,500,000円 戸建て 264m²

神奈川県秦野市平沢 秦野駅15分の国税庁公売物件

13,640,259円
で売却されました
2026年1月21日(水)

売却結果

実施局署
東京国税局
公売公告番号
48号
公告日
令和7年12月9日
入札期間
令和8年1月6日 から 令和8年1月15日
公売の方法
期間入札
開札期日
令和8年1月20日午前10時00分
売却決定の日時
令和8年2月4日午前10時00分
次順位買受申込者に対する売却決定の日は、国税徴収法第113条第2項に定める日となります。
売却決定の場所
東京国税局
売却区分番号
90-2
入札者等の区分
最高価申込者
入札(売却)価額
13,640,259円

期間入札 () 580万円 値下げ

実施局署
東京 国税局
見積価額
13,500,000円
公売の方法
期間入札
公売公告番号
48号
公売保証金
1,400,000円
売却区分番号
90-2
公売保証金の提供方法
現金等
入札期間
令和8年1月6日午前9時00分 から 令和8年1月15日午後5時00分
入札の場所
東京国税局
公売保証金の納付期限
令和8年1月13日午後5時00分
開札期日
令和8年1月20日午前10時00分
開札の場所
東京国税局
買受代金納付期限
令和8年2月4日午後3時00分
売却決定の日時
令和8年2月4日午前10時00分
売却決定の場所
東京国税局
追加入札期間
令和8年1月27日午前9時00分 から 令和8年2月3日午後5時00分
追加入札開札期日
令和8年2月6日午前10時00分
開札の場所
東京国税局
買受代金納付期限
令和8年2月24日午後3時00分
売却決定の日時
令和8年2月24日午前10時00分
売却決定の場所
東京国税局
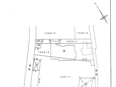
住居表示等
神奈川県秦野市平沢1061番地
交通機関
小田急電鉄 小田原線 秦野駅 徒歩 19分
面積 (地積) 合計
485.81m² (147.0坪)
主たる地目
宅地
床面積合計
264.33m² (80.0坪)
主たる種類
居宅

詳細情報 (個別)

財産番号
1
種別
土地
所在地 (登記簿表示内容)
神奈川県秦野市平沢字南開戸1060番1
地目 (登記簿表示内容)
宅地
面積 (登記簿表示内容)
101.31m² (30.6坪)
地盤・地勢
ほぼ平坦地
接道状況
北西側 幅員約4.5メートル舗装市道
東側 幅員約3メートル舗装市道 (建築基準法上の道路) 各々ほぼ等高接面
使用状況
対象物件1及び2 件外土地 (1061番1) と一体となって対象物件3及び4の敷地として使用
対象物件3 建築年不詳、平成6年頃増築
当局の差押え時の所有者が居宅として使用
貸借関係等の内容は不明
対象物件4 昭和49年頃建築
所有者の親族が居宅として使用
貸借関係等の内容は不明
留意事項
公売は現況有姿により行うものであるため、次の一般的事項を十分ご理解の上、公売へご参加ください。
1. 公売財産については、あらかじめその現況及び関係公簿等を確認してください。
2. 公売財産に財産の種類又は品質に関する不適合があっても、執行機関 (国) は、担保責任を負いません。
3. 執行機関 (国) は、公売財産の引渡義務を負わないため、使用者又は占有者に対して明渡しを求める場合や不動産内にある動産の処理などはすべて買受人の責任において行うことになります。
4. 土地の境界については隣接地所有者と、接面道路 (私道) の利用については道路所有者とそれぞれ協議してください。
5. 土壌汚染やアスベストなどに関する専門的な調査は行っておりません。

なお、売却区分番号内に複数の財産 (財産が一つで所有者を異にする場合を含む。) があるものについては、国税徴収法第89条第3項の規定に基づき、一括換価の方法により公売を行います。
(注)
地盤・地勢、接道状況等は財産 (1筆) 毎ではなく、全体としての状況を記しております。

詳細情報 (個別)

財産番号
2
種別
土地
所在地 (登記簿表示内容)
神奈川県秦野市平沢字南開戸1060番2
地目 (登記簿表示内容)
宅地
面積 (登記簿表示内容)
384.50m² (116.3坪)

詳細情報 (個別)

財産番号
3
種類 (登記簿表示内容)
居宅
所在地 (登記簿表示内容)
神奈川県秦野市平沢字南開戸 1060番地2、1060番地1、1061番地1
家屋番号 (登記簿表示内容)
1060番2
構造 (登記簿表示内容)
木造草葺平家建
床面積 (登記簿表示内容)
194.81m² (58.9坪)
附属建物の表示 - 符号 (登記簿表示内容)
3
附属建物の表示 - 種類 (登記簿表示内容)
土蔵
附属建物の表示 - 構造 (登記簿表示内容)
土蔵造亜鉛メッキ鋼板葺平家建
附属建物の表示 - 床面積 (登記簿表示内容)
12.39m² (3.7坪)

詳細情報 (個別)

財産番号
4
種類 (登記簿表示内容)
居宅
所在地 (登記簿表示内容)
神奈川県秦野市平沢字南開戸 1060番地2、1060番地1
家屋番号 (登記簿表示内容)
1060番2の2
構造 (登記簿表示内容)
木造スレートぶき2階建
床面積 (登記簿表示内容)
1階 44.68m² (13.5坪)
2階 24.84m² (7.5坪)

詳細情報 (共通)

公法上の規制
第1種中高層住居専用地域
準防火地域
日影規制 (4時間-2.5時間)
立地適正化計画 (居住誘導区域外の田園近接居住区域)
埋蔵文化財包蔵地 (ナンバー20平沢北ノ開戸遺跡)
特記事項
対象物件1及び2「ほこら」あり
井戸あり
電柱の支線あり
物置あり
対象物件1の西側の塀が隣接地 (1060番4) にはみ出している可能性がある。
見積価額の内訳
対象物件1〜3 11,893,500円
対象物件4 1,606,500円
その他事項
公売財産の売却決定は、最高価申込者に係る入札価額をもって行います。

公売財産に関するお問い合せ先

お問い合せ先
東京 国税局
お問い合せの際には、開札日(令和8年1月20日)と売却区分番号(90-2)をお申出の上ご照会ください。
担当部署名
特別整理総括第二課
郵便番号
104-8449
所在地
中央区築地5丁目3番1号
電話番号
03-3542-2111
内線
3305、3306、3307
電話受付時間
平日午前9時から午後5時まで

過去の出品

1回目
2,760万円 (2024.11.07終了)
2回目
1,930万円 (2025.03.12終了)
出典:国税庁ホームページ - (90-2 神奈川県秦野市) 土地付建物詳細 | 公売情報

最寄り駅・周辺地図

神奈川県秦野市 戸建ての販売価格

取引平均-

近隣の戸建て落札価格

入札数{{ point.bids }}入札数1{{ point.base }}{{ point.sold }}{{ point.sqm.toLocaleString() }}m²築{{ point.age }}年
周辺には戸建ての落札履歴がありません。地図をドラッグして範囲や縮尺を変えてお試しください