1,381 物件出品中!

愛媛県四国中央市土居町入野 伊予土居駅15分の公売物件
¥ 37,370,000円 土地 3,151m²

愛媛県四国中央市土居町入野 伊予土居駅15分の国税庁公売物件

不売になりました
2026年2月27日(金)

売却結果

実施局署
高松国税局
公売公告番号
22号
公告日
令和8年1月26日
入札期間
令和8年2月16日 から 令和8年2月24日
公売の方法
期間入札
開札期日
令和8年2月26日午前10時00分
売却決定の日時
令和8年3月19日午前10時00分
次順位買受申込者に対する売却決定の日は、国税徴収法第113条第2項に定める日となります。
売却決定の場所
高松国税局
売却区分番号
141-1
入札者等の区分
入札なし
入札(売却)価額
0円

期間入札 () 159万円 値下げ

実施局署
高松 国税局
見積価額
37,370,000円
公売の方法
期間入札
公売公告番号
22号
公売保証金
3,800,000円
売却区分番号
141-1
公売保証金の提供方法
現金等
入札期間
令和8年2月16日午前8時30分 から 令和8年2月24日午後5時00分
入札の場所
高松国税局
公売保証金の納付期限
令和8年2月20日午後2時00分
開札期日
令和8年2月26日午前10時00分
開札の場所
高松国税局
買受代金納付期限
令和8年3月19日午後2時00分
売却決定の日時
令和8年3月19日午前10時00分
売却決定の場所
高松国税局
住居表示等
近隣の住居表示「愛媛県四国中央市土居町入野141」付近
交通機関
JR (四国) 予讃線 伊予土居駅 から南西へ約1.4キロメートル (道路距離)
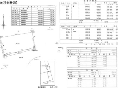
面積 (地積) 合計
3,151m² (953.2坪)
主たる地目
雑種地

詳細情報 (個別)

財産番号
1
種別
土地
所在地 (登記簿表示内容)
愛媛県四国中央市土居町入野108番
地目 (登記簿表示内容)
雑種地
面積 (登記簿表示内容)
2,251m² (680.9坪)
地盤・地勢
間口 (南側):約41メートル
奥行:約57メートル
形状:やや不整形
地勢:全体的には概ね平坦
ただし、南側及び西側以外の周囲は幅約2〜3メートル程度の法面です。
接道状況
南側:幅員約13メートルの舗装国道11号線 (建築基準法第42条第1項第1号道路に該当) に概ね等高に接面しています。
東側:幅員約2.3メートルの舗装市道北番掛線 (建築基準法第42条第2項道路に該当) に幅約0.3メートルの水路を介して約2〜3メートル高く接面しています。
西側:公図上、公売財産2 (地番136番1の土地) の西側に幅約1メートルの道が存しますが、建築基準法上の道路に該当しません。
使用状況
・公売財産上には電柱が存します。
・北側及び東側に設置されているメッシュフェンスは、公売財産の現所有者のものです (公売財産の現所有者から聴取)。
・公売財産の現所有者と第三者との間で土地賃貸借契約が締結されています。
【契約内容1】
契約年月日:令和3年9月1日
契約形態:書面 (土地賃借契約)
使用目的:野立看板の設置場所
設置場所:貸主の私有地
契約期間:看板設置月より1年間とし、事前に申し出がない場合は、自動更新
土地使用料:1年間60,000円 (30,000円×2)
【契約内容2】
契約年月日:令和4年4月13日
契約形態:書面 (土地賃借契約)
使用目的:野立看板の設置場所
設置場所:貸主の私有地
契約期間:看板設置月より1年間とし、事前に申し出がない場合は、自動更新
土地使用料:1年間40,000円
管理状況
上水道:引込可 (南側国道及び東側市道に上水道管有) 下水道:無 都市ガス:無

詳細情報 (個別)

財産番号
2
種別
土地
所在地 (登記簿表示内容)
愛媛県四国中央市土居町入野136番1
地目 (登記簿表示内容)
雑種地
面積 (登記簿表示内容)
900m² (272.3坪)

詳細情報 (共通)

公法上の規制
非線引都市計画区域
準住居地域 (国道端から約30メートルの範囲まで)
第一種住居地域 (国道端から約30メートルより北側)
特記事項
1. 公売財産1及び2は、国税徴収法第89条第3項の規定により、一括換価の方法により公売を行います。
なお、公売財産の見積価額の内訳は次のとおりです。
公売財産1 見積価額:26,700,000円
公売財産2 見積価額:10,670,000円
2. 公売は現況有姿により行うものであるため、次の一般的事項を十分ご理解の上、公売へご参加ください。
(1) 公売財産について、あらかじめその現況及び関係公簿等を確認してください。
(2) 公売財産の種類又は品質に関する不適合があっても、執行機関 (国) は、担保責任を負いません。
(3) 執行機関 (国) は、公売財産の引渡しの義務を負わないため、使用者又は占有者に対して明渡しを求める場合や公売財産内にある動産等の処理などは、すべて買受人の責任において行うことになります。
(4) 土地の境界については、隣接地所有者と協議してください。
(5) 土壌汚染、地中埋設物、アスベストなどに関する専門的な調査は行っていません。
3. 権利移転及び危険負担の移転の時期は、売却決定後、買受人が買受代金を納付した時です。
ただし、法令等の規定により許可又は登記等を要する公売財産については、関係機関の許可又は登録等の要件を満たさなければ、権利移転の効力は生じません。
4. 公売財産の権利移転に伴う費用は、買受人の負担となります。
5. 公売を中止する場合がありますので入札前に公売中止の有無をご確認ください。
その他事項
公売財産の売却決定は、最高価申込者に係る入札価額をもって行います。

公売財産に関するお問い合せ先

お問い合せ先
高松 国税局
お問い合せの際には、開札日(令和8年2月26日)と売却区分番号(141-1)をお申出の上ご照会ください。
担当部署名
特別整理第一部門
郵便番号
760-0018
所在地
高松市天神前2番10号高松国税総合庁舎
電話番号
087-831-3111
内線
492
電話受付時間
平日午前9時から午後5時まで

過去の出品

1回目
5,422万円 (2025.01.24不売)
2回目
4,768万円 (2025.04.29不売)
3回目
3,896万円 (2025.09.06不売)
出典:国税庁ホームページ - (141-1 愛媛県四国中央市) 土地詳細 | 公売情報

最寄り駅・周辺地図

JR予讃線伊予土居駅 15分 (約1.2km)
JR予讃線関川駅 28分 (約2.2km)
JR予讃線赤星駅 49分 (約3.9km)

愛媛県四国中央市 土地の販売価格

取引平均-

近隣の土地落札価格

入札数{{ point.bids }}入札数1{{ point.base }}{{ point.sold }}{{ point.sqm.toLocaleString() }}m²築{{ point.age }}年
周辺には土地の落札履歴がありません。地図をドラッグして範囲や縮尺を変えてお試しください