2,014 物件出品中!

山梨県南巨摩郡身延町波木井 塩之沢駅8分の競売物件
¥ 3,400,000円 戸建て 326m²

山梨県南巨摩郡身延町波木井 塩之沢駅8分の競売物件

3,740,000円
で売却されました
2026年3月19日(木)

期間入札 (初出品)

管轄裁判所
甲府地方裁判所本庁
事件番号
令和07年(ケ)第76号
売却基準価額
3,400,000円
買受申出保証額
680,000円
買受可能価額
2,720,000円

売却結果

売却価額
3,740,000円
開札結果
売却
入札者数
1人
落札者資格
個人
開札日
2026年3月19日(木)

物件概要

所在地 (地番)
山梨県南巨摩郡身延町波木井字上ノ島 1868番地1、1867番地1、1869番地1
住居表示
山梨県南巨摩郡身延町波木井1867番地1
評価上の交通
JR身延線「身延」駅 北西方 道路距離 約2.5km
参考交通
JR身延線 塩之沢駅 南西方 0.70km
延床面積
326.06m² (98.6坪)
土地面積 (合計)
1,284.41m² (388.5坪)
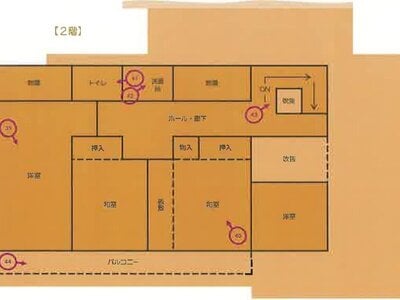
間取り
-
種類
居宅
用途地域
都市計画区域内未指定
物件番号
  • 1. 土地
  • 2〜3. 建物 (所有権)

物件詳細

物件番号
1
種別
土地
所在地
南巨摩郡身延町波木井字上ノ島 1867番1
地目 (登記)
宅地
地目 (現況)
-
土地面積 (登記)
1,284.41m² (388.5坪)
土地面積 (現況)
-
用途地域
都市計画区域内未指定
土地の利用状況
-
建ぺい率
70%
容積率
200%
持分
-
物件番号
2
種別
建物
所在地
南巨摩郡身延町波木井字上ノ島 1868番地1、1867番地1、1869番地1
家屋番号
公開終了
種類 (登記)
居宅
種類 (現況)
-
構造 (登記)
木造瓦葺2階建
構造 (現況)
-
床面積 (登記)
1階 245.74m² (74.3坪)
2階 80.32m² (24.3坪)
床面積 (現況)
-
間取り
その他
敷地利用権
所有権
占有者
債務者・所有者
築年月
平成1年12月 (1989年・築36年)
持分
-
物件番号
3
種別
建物
所在地
南巨摩郡身延町波木井字上ノ島 1870番地1、1867番地1、1869番地1
家屋番号
公開終了
種類 (登記)
作業場・倉庫
種類 (現況)
-
構造 (登記)
鉄骨造亜鉛メッキ鋼板葺2階建
構造 (現況)
-
床面積 (登記)
1階 122.71m² (37.1坪)
2階 118.39m² (35.8坪)
床面積 (現況)
-
間取り
その他
敷地利用権
所有権
占有者
債務者・所有者
築年月
平成1年12月 (1989年・築36年)
持分
-
附属建物
符号 1
種類(現況) -
構造(登記) 鉄骨造亜鉛メッキ鋼板葺平家建
構造(現況) -
種類(登記) 物置
床面積(登記) 58.42m²
床面積(現況) -
注意事項
本詳細情報画面の内容については、必ず物件資料3点セット(物件明細書、現況調査報告書及び評価書等)をダウンロードの上、ご確認ください(民事執行法63条2項1号の申出がある場合等があります)。本システムからダウンロードした「現況調査報告書」及び「評価書」に引用されている写真、資料及び図面は、本システム上は添付されていない場合があります。

売却スケジュール

売却実施処分日
2026年2月3日(火)
公告日
2026年2月18日(水)
閲覧開始日
2026年2月18日(水)
入札期間
2026年3月5日(木)〜3月12日(木)
開札日
2026年3月19日(木)
特別売却期間
2026年3月23日(月)〜3月25日(水)
売却決定日
2026年4月9日(木)
確定日
2026年4月17日(金)
状態
終了
スケジュール
競売スケジュール
出典:裁判所BIT 不動産競売物件情報

最寄り駅・周辺地図

JR身延線塩之沢駅 8分 (約570m)
JR身延線身延駅 24分 (約1.9km)
JR身延線波高島駅 59分 (約4.7km)

山梨県南巨摩郡身延町 戸建ての販売価格

取引平均-

近隣の戸建て落札価格

入札数{{ point.bids }}入札数1{{ point.base }}{{ point.sold }}{{ point.sqm.toLocaleString() }}m²築{{ point.age }}年
周辺には戸建ての落札履歴がありません。地図をドラッグして範囲や縮尺を変えてお試しください