1,637 物件出品中!

広島県廿日市市峠 前空駅の競売物件
¥ 5,596,000円 戸建て 125m²

広島県廿日市市峠 前空駅の競売物件

4,500,000円
で売却されました
2026年4月17日(金)

期間入札 (初出品)

管轄裁判所
広島地方裁判所本庁
事件番号
令和07年(ケ)第162号
売却基準価額
5,596,000円
買受申出保証額
1,120,000円
買受可能価額
4,476,800円

売却結果

売却価額
4,500,000円
開札結果
売却
入札者数
1人
落札者資格
個人
開札日
2026年4月17日(金)

物件概要

所在地 (地番)
広島県廿日市市峠字大宅10336番地32
住居表示
広島県廿日市市峠336番地32
評価上の交通
JR山陽本線「」駅 西方 直線距離 約8400m
参考交通
-
延床面積
125.03m² (37.8坪)
土地面積 (合計)
376.18m² (113.8坪)
間取り
-
種類
居宅
用途地域
第一種低層住居専用地域 (住居と一部公共施設のみ建築可能)
物件番号
  • 1〜2. 土地
  • 3. 建物 (所有権)

物件詳細

物件番号
1
種別
土地
所在地
廿日市市峠字大宅 10336番32
地目 (登記)
宅地
地目 (現況)
-
土地面積 (登記)
363.14m² (109.8坪)
土地面積 (現況)
-
用途地域
第一種低層住居専用地域 (住居と一部公共施設のみ建築可能)
土地の利用状況
-
建ぺい率
50%
容積率
100%
持分
-
物件番号
2
種別
土地 持分売り
所在地
廿日市市峠字大宅 10336番1
地目 (登記)
公衆用道路
地目 (現況)
-
土地面積 (登記)
19,560m² (5,916.9坪)
土地面積 (現況)
-
用途地域
-
土地の利用状況
-
建ぺい率
-
容積率
-
持分
3000分の2
物件番号
3
種別
建物
所在地
廿日市市峠字大宅10336番地32
家屋番号
公開終了
種類 (登記)
居宅
種類 (現況)
-
構造 (登記)
木造スレートぶき2階建
構造 (現況)
-
床面積 (登記)
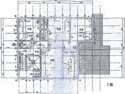
1階 70.38m² (21.3坪)
2階 54.65m² (16.5坪)
床面積 (現況)
-
間取り
その他
敷地利用権
所有権
占有者
債務者・所有者
築年月
平成29年9月 (2017年・築8年)
持分
-
注意事項
本詳細情報画面の内容については、必ず物件資料3点セット(物件明細書、現況調査報告書及び評価書等)をダウンロードの上、ご確認ください(民事執行法63条2項1号の申出がある場合等があります)。本システムからダウンロードした「現況調査報告書」及び「評価書」に引用されている写真、資料及び図面は、本システム上は添付されていない場合があります。

売却スケジュール

売却実施処分日
2026年3月9日(月)
公告日
2026年3月23日(月)
閲覧開始日
2026年3月23日(月)
入札期間
2026年4月8日(水)〜4月14日(火)
開札日
2026年4月17日(金)
特別売却期間
2026年4月21日(火)のみ
売却決定日
2026年5月7日(木)
確定日
2026年5月15日(金)
状態
終了
スケジュール
競売スケジュール
出典:裁判所BIT 不動産競売物件情報

最寄り駅・周辺地図

広島県廿日市市 戸建ての販売価格

取引平均-

近隣の戸建て落札価格

入札数{{ point.bids }}入札数1{{ point.base }}{{ point.sold }}{{ point.sqm.toLocaleString() }}m²築{{ point.age }}年
周辺には戸建ての落札履歴がありません。地図をドラッグして範囲や縮尺を変えてお試しください