1,953 物件出品中!

東京都江戸川区東小岩 小岩駅20分の公売物件
¥ 5,200,000円 戸建て 78m²

期間入札 (初出品)

実施局署
東京 国税局
見積価額
5,200,000円
公売の方法
期間入札
公売公告番号
74号
公売保証金
600,000円
売却区分番号
3990-1
公売保証金の提供方法
現金等
入札期間
令和8年5月1日午前9時00分 から 令和8年5月14日午後5時00分
入札の場所
東京国税局
必要書類の提出期限 (電子入札の場合)
令和8年5月12日午後5時00分
公売保証金の納付期限
令和8年5月12日午後5時00分
開札期日
令和8年5月19日午前10時00分
開札の場所
東京国税局
買受代金納付期限
令和8年6月3日午後3時00分
売却決定の日時
令和8年6月3日午前10時00分
売却決定の場所
東京国税局
追加入札期間
令和8年5月22日午前9時00分 から 令和8年5月27日午後5時00分
追加入札開札期日
令和8年5月29日午前10時00分
開札の場所
東京国税局
買受代金納付期限
令和8年6月9日午後3時00分
売却決定の日時
令和8年6月9日午前10時00分
売却決定の場所
東京国税局
住居表示等
東京都江戸川区東小岩1丁目24番24
交通機関
JR (東日本) 総武線 南東方約1.7キロメートル
床面積合計
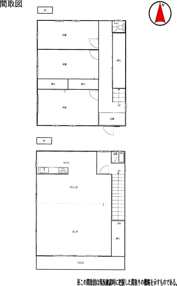
77.76m² (23.5坪)
主たる種類
居宅

詳細情報 (個別)

財産番号
1
種類 (登記簿表示内容)
居宅
所在地 (登記簿表示内容)
東京都江戸川区東小岩一丁目 111番地
家屋番号 (登記簿表示内容)
111番の3
構造 (登記簿表示内容)
木造スレート葺2階建
床面積 (登記簿表示内容)
1階 38.88m² (11.8坪)
2階 38.88m² (11.8坪)
地盤・地勢
ほぼ平坦地
接道状況
南側 幅員約6.0メートル舗装区道
西側 幅員約4.5メートル舗装私道 各々ほぼ等高接面
使用状況
平成12年頃建築
所有者の親族に賃貸
賃借人の申立てによる賃貸借契約等の内容
現行賃料 (月額) 70,000円
存続期間その他賃貸借契約等の内容は不明

対象物件の敷地 (111番11)
第三者所有
敷地所有者の申立てによる賃貸借契約の内容
契約期間 令和5年12月16日から令和12年12月15日まで
現行地代 (月額) 40,000円
敷金 40,000円
留意事項
公売は現況有姿により行うものであるため、次の一般的事項を十分ご理解の上、公売へご参加ください。
1. 公売財産については、あらかじめその現況及び関係公簿等を確認してください。
2. 公売財産に財産の種類又は品質に関する不適合があっても、執行機関 (国) は、担保責任を負いません。
3. 執行機関 (国) は、公売財産の引渡義務を負わないため、使用者又は占有者に対して明渡しを求める場合や不動産内にある動産の処理などはすべて買受人の責任において行うことになります。
4. 土地の境界については隣接地所有者と、接面道路 (私道) の利用については道路所有者とそれぞれ協議してください。
5. 土壌汚染やアスベストなどに関する専門的な調査は行っておりません。

なお、売却区分番号内に複数の財産 (財産が一つで所有者を異にする場合を含む。) があるものについては、国税徴収法第89条第3項の規定に基づき、一括換価の方法により公売を行います。

詳細情報 (共通)

公法上の規制
第一種中高層住居専用地域
準防火地域
敷地面積最低限度70m²
日影規制 (4時間-2.5時間)
宅地造成等工事規制区域
特記事項
敷地の賃貸借契約により差し入れている敷金は買受人に引き継がれません。
その他事項
公売財産の売却決定は、最高価申込者に係る入札価額をもって行います。

公売財産に関するお問い合せ先

お問い合せ先
東京 国税局
お問い合せの際には、開札日(令和8年5月19日)と売却区分番号(3990-1)をお申出の上ご照会ください。
担当部署名
特別整理総括第二課
郵便番号
104-8449
所在地
中央区築地5丁目3番1号
電話番号
03-3542-2111
内線
3305、3306、3307
電話受付時間
平日午前9時から午後5時まで
出典:国税庁ホームページ - (3990-1 東京都江戸川区) 建物詳細 | 公売情報

最寄り駅・周辺地図

東京都江戸川区 戸建ての販売価格

取引平均-

近隣の戸建て落札価格

入札数{{ point.bids }}入札数1{{ point.base }}{{ point.sold }}{{ point.sqm.toLocaleString() }}m²築{{ point.age }}年
周辺には戸建ての落札履歴がありません。地図をドラッグして範囲や縮尺を変えてお試しください