2,108 物件出品中!

大阪府四條畷市岡山東 忍ヶ丘駅11分の公売物件
¥ 3,695,000円 土地 137m²

期間入札 () 158万円 値下げ

実施局署
大阪 国税局
見積価額
3,695,000円
公売の方法
期間入札
公売公告番号
21号
公売保証金
400,000円
売却区分番号
1068-1
公売保証金の提供方法
現金等
入札期間
令和8年5月8日午前9時00分 から 令和8年5月15日午後5時00分
入札の場所
大阪国税局 徴収部 特別整理総括第二課
必要書類の提出期限 (電子入札の場合)
令和8年5月14日午後5時00分
公売保証金の納付期限
令和8年5月14日午後5時00分
開札期日
令和8年5月19日午前11時00分
開札の場所
大阪合同庁舎第三号館 1階 打合せ室
買受代金納付期限
令和8年6月9日午後3時00分
売却決定の日時
令和8年6月9日午前11時00分
売却決定の場所
大阪国税局 徴収部 特別整理総括第二課
追加入札期間
令和8年6月15日午前9時00分 から 令和8年6月19日午後5時00分
追加入札開札期日
令和8年6月23日午前11時00分
開札の場所
大阪国税局 徴収部 特別整理総括第二課
買受代金納付期限
令和8年7月14日午後3時00分
売却決定の日時
令和8年7月14日午前11時00分
売却決定の場所
大阪国税局 徴収部 特別整理総括第二課
住居表示等
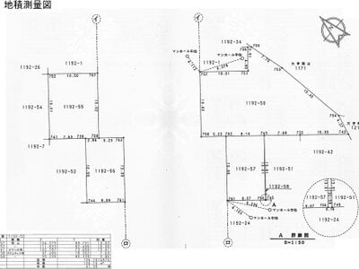
大阪府四條畷市岡山東5丁目1192番55
交通機関
JR (西日本) 学研都市線 (片町線) 南東方約1.3キロメートル (道路距離)
面積 (地積) 合計
136.70m² (41.4坪)
主たる地目
宅地

詳細情報 (個別)

財産番号
1
種別
土地
所在地 (登記簿表示内容)
大阪府四條畷市岡山東五丁目1192番55
地目 (登記簿表示内容)
宅地
面積 (登記簿表示内容)
136.70m² (41.4坪)
地盤・地勢
公売財産は、間口約10.5メートル、奥行き約13メートルのほぼ長方形状の画地であり、地勢はほぼ平たんである。
接道状況
公売財産は、北東側で幅員約4.8メートルの舗装市管理道路 (建築基準法上の道路ではない。) に約3メートル高く接面する。
使用状況
公売財産は、令和7年10月現在、利用されておらず、雑草等が繁茂している。
管理状況
-

詳細情報 (共通)

公法上の規制
市街化区域
第一種低層住居専用地域
特記事項
公売財産の北西側に、未登記の堀込車庫が存在する。
公売財産には、公簿上次のような要役地地役権が設定されている。
承役地:四條畷市岡山東五丁目1210番4
四條畷市岡山東五丁目1210番7
目 的:通行
範 囲:全部
昭和60年12月27日登記
その他事項
公売財産の売却決定は、最高価申込者に係る入札価額をもって行います。
留意事項
1. 公売財産については、あらかじめその現況及び関係公簿等をご確認ください。
2. 掲載している図面及び写真が現況と異なる場合は、現況を優先します。
3. 公売財産に財産の種類又は品質に関する不適合があっても、執行機関 (国) は、担保責任を負いません。
4. 執行機関 (国) は、公売財産の引渡義務を負わないため、使用者又は占有者に対して明渡しを求める場合や、公売財産内にある動産等の処理については買受人が行うことになります。
5. 土地の境界については隣接地所有者と、接面道路 (私道) の利用については道路所有者とそれぞれ協議してください。
6. 土壌汚染やアスベストなどに関する専門的な調査は行っておりません。
7. 権利移転及び危険負担の移転の時期は、売却決定後、買受人が買受代金を納付した時です。
ただし、法令等の規定により許可又は登録等を要する公売財産については、関係機関の許可又は登録等の要件を満たさなければ、権利移転の効力は生じません。
8. 公売財産の権利移転に伴う費用は買受人の負担となります。
9. 公売を中止する場合がありますので、入札前に公売中止の有無をご確認ください。
10. 売却区分番号内に複数の財産 (財産が一つで所有者を異にする場合を含む。) があるものについては、国税徴収法第89条第3項の規定に基づき、一括換価の方法により公売を行います。

公売財産に関するお問い合せ先

お問い合せ先
大阪 国税局
お問い合せの際には、開札日(令和8年5月19日)と売却区分番号(1068-1)をお申出の上ご照会ください。
担当部署名
特別整理総括第二課
郵便番号
540-8541
所在地
大阪市中央区大手前1丁目5番63号大阪合同庁舎第3号館
電話番号
06-6941-5331
内線
4688
電話受付時間
平日午前9時から午後5時まで

過去の出品

1回目
528万円 (2026.02.18不売)
出典:国税庁ホームページ - (1068-1 大阪府四條畷市) 土地詳細 | 公売情報

最寄り駅・周辺地図

JR片町線忍ヶ丘駅 11分 (約810m)
JR片町線寝屋川公園駅 16分 (約1.3km)
JR片町線四条畷駅 26分 (約2.1km)

大阪府四條畷市 土地の販売価格

取引平均-

近隣の土地落札価格

入札数{{ point.bids }}入札数1{{ point.base }}{{ point.sold }}{{ point.sqm.toLocaleString() }}m²築{{ point.age }}年
周辺には土地の落札履歴がありません。地図をドラッグして範囲や縮尺を変えてお試しください