1,736 物件入札可能!

東京都荒川区南千住 南千住駅2分 「南千住サニーコート」の公売物件
¥ 34,600,000円 マンション 57m²

東京都荒川区南千住 南千住駅2分 「南千住サニーコート」の国税庁公売物件

49,822,000円
で売却されました
2026年2月18日(水)

売却結果

実施局署
東京国税局
公売公告番号
53号
公告日
令和8年1月8日
入札期間
令和8年2月2日 から 令和8年2月12日
公売の方法
期間入札
開札期日
令和8年2月17日午前10時00分
売却決定の日時
令和8年3月4日午前10時00分
次順位買受申込者に対する売却決定の日は、国税徴収法第113条第2項に定める日となります。
売却決定の場所
東京国税局
売却区分番号
3866-3
入札者等の区分
次順位買受申込者
入札(売却)価額
49,822,000円

期間入札 (初出品)

実施局署
東京 国税局
見積価額
34,600,000円
公売の方法
期間入札
公売公告番号
53号
公売保証金
3,500,000円
売却区分番号
3866-3
公売保証金の提供方法
現金等
入札期間
令和8年2月2日午前9時00分 から 令和8年2月12日午後5時00分
入札の場所
東京国税局
必要書類の提出期限 (電子入札の場合)
令和8年2月9日午後5時00分
公売保証金の納付期限
令和8年2月9日午後5時00分
開札期日
令和8年2月17日午前10時00分
開札の場所
東京国税局
買受代金納付期限
令和8年3月4日午後3時00分
売却決定の日時
令和8年3月4日午前10時00分
売却決定の場所
東京国税局
追加入札期間
令和8年2月25日午前9時00分 から 令和8年3月4日午後5時00分
追加入札開札期日
令和8年3月9日午前10時00分
開札の場所
東京国税局
買受代金納付期限
令和8年3月24日午後3時00分
売却決定の日時
令和8年3月24日午前10時00分
売却決定の場所
東京国税局
住居表示等
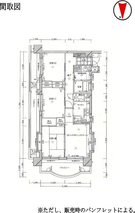
東京都荒川区南千住5丁目36番8-405号
交通機関
東京メトロ 日比谷線 南千住駅 徒歩 3分 JR (東日本) 常磐線 南千住駅 徒歩 3分 つくばエクスプレス 南千住駅 徒歩 3分
床面積合計
57.40m² (17.4坪)
主たる種類
居宅

詳細情報 (個別)

財産番号
1
所在地 (登記簿表示内容)
東京都荒川区南千住五丁目 17番地1
建物の名称 (登記簿表示内容)
構造 (登記簿表示内容)
鉄筋コンクリート造陸屋根8階建
床面積 (登記簿表示内容)
公開終了 337.17m² (102.0坪)
公開終了 285.93m² (86.5坪)
公開終了 285.93m² (86.5坪)
公開終了 285.93m² (86.5坪)
公開終了 285.93m² (86.5坪)
公開終了 278.91m² (84.4坪)
公開終了 202.52m² (61.3坪)
公開終了 66.94m² (20.2坪)
地盤・地勢
ほぼ平坦地
接道状況
北側 幅員約5.1メートル舗装区道
東側 幅員約4.0メートル舗装私道 (敷地権の目的である土地の符号2を含む。建築基準法上の道路) 各々ほぼ等高接面
土地の符号 (登記簿表示内容)
2
所在 (登記簿表示内容)
荒川区南千住五丁目17番26
地目 (登記簿表示内容)
宅地
地積 (登記簿表示内容)
80.92m²
家屋番号 (登記簿表示内容)
南千住五丁目 17番1の405
建物番号 (登記簿表示内容)
405
種類 (登記簿表示内容)
居宅
構造 (登記簿表示内容)
鉄筋コンクリート造1階建
床面積 (登記簿表示内容)
公開終了 57.40m² (17.4坪)
使用状況
平成9年頃建築の「」内に所在
所有者の申立てによると、令和6年12月4日現在、居住その他の使用がなされていない。
所有者の申立てによると、多数の動産あり
管理状況
「株式会社フロントサイドコミュニティー」あて管理委託
月額管理費 (支払期日:当月末日) 13,700円
修繕積立金 (支払期日:当月末日) 17,000円
駐輪 (バイク) 置場使用料 (支払期日:当月末日) 500円〜2,000円
町会費 (支払期日:当月末) 200円
未納管理費等 (令和7年9月19日現在) 1,076,727円
管理規約の内容については、「株式会社フロントサイドコミュニティー」にお問い合わせください。
(連絡先) 株式会社フロントサイドコミュニティー
電話番号03-3986-0102
留意事項
公売は現況有姿により行うものであるため、次の一般的事項を十分ご理解の上、公売へご参加ください。
1. 公売財産については、あらかじめその現況及び関係公簿等を確認してください。
2. 公売財産に財産の種類又は品質に関する不適合があっても、執行機関 (国) は、担保責任を負いません。
3. 執行機関 (国) は、公売財産の引渡義務を負わないため、使用者又は占有者に対して明渡しを求める場合や不動産内にある
動産の処理などはすべて買受人の責任において行うことになります。
4. 土地の境界については隣接地所有者と、接面道路 (私道) の利用については道路所有者とそれぞれ協議してください。
5. 土壌汚染やアスベストなどに関する専門的な調査は行っておりません。

なお、売却区分番号内に複数の財産 (財産が一つで所有者を異にする場合を含む。) があるものについては、国税徴収法第89条第3項の規定に基づき、一括換価の方法により公売を行います。
敷地権の表示 - 土地の符号 (登記簿表示内容)
2
敷地権の表示 - 敷地権の種類 (登記簿表示内容)
所有権
敷地権の表示 - 敷地権の割合 (登記簿表示内容)
174767分の6250

詳細情報 (共通)

公法上の規制
南千住仲通りから20メートル以内の部分
近隣商業地域
準防火地域
第3種高度地区
敷地面積最低限度 60m²
日影規制 (5時間-3時間)
新たな防火規制区域 (東京都条例)
宅地造成等工事規制区域
建蔽率 80% 容積率 300%

その他の部分
準工業地域
準防火地域
第3種高度地区
特別工業地区
敷地面積最低限度 60m²
日影規制 (5時間-3時間)
新たな防火規制区域 (東京都条例)
宅地造成等工事規制区域
建蔽率 80% 容積率 300%
特記事項
-
その他事項
公売財産の売却決定は、最高価申込者に係る入札価額をもって行います。

公売財産に関するお問い合せ先

お問い合せ先
東京 国税局
お問い合せの際には、開札日(令和8年2月17日)と売却区分番号(3866-3)をお申出の上ご照会ください。
担当部署名
特別整理総括第二課
郵便番号
104-8449
所在地
中央区築地5丁目3番1号
電話番号
03-3542-2111
内線
3305、3306、3307
電話受付時間
平日午前9時から午後5時まで
出典:国税庁ホームページ - (3866-3 東京都荒川区) 区分所有建物詳細 | 公売情報

最寄り駅・周辺地図

東京都荒川区 マンションの販売価格

取引平均-

近隣のマンション落札価格

入札数{{ point.bids }}入札数?{{ point.base }}{{ point.sold }}{{ point.sqm.toLocaleString() }}m²築{{ point.age }}年
周辺にはマンションの落札履歴がありません。地図をドラッグして範囲や縮尺を変えてお試しください