1,710 物件入札可能!

広島県山県郡安芸太田町の競売物件
¥ 3,529,000円 戸建て 307m²

広島県山県郡安芸太田町の競売物件

不売になりました
2025年10月21日(火)

特別売却 ()

管轄裁判所
広島地方裁判所本庁
事件番号
令和06年(ケ)第169号
売却基準価額
3,529,000円
買受申出保証額
710,000円
買受可能価額
2,823,200円

売却結果

売却価額
-
売却結果
不売
落札者資格
-
終了日
2025年10月21日(火)

物件概要

所在地 (地番)
広島県山県郡安芸太田町大字小板字城根1255番地9
住居表示
広島県山県郡安芸太田町大字小板1255番地9
評価上の交通
安芸太田町役場 北西方 直線距離 約10.2km
参考交通
-
延床面積
307.43m² (93.0坪)
土地面積 (合計)
850.23m² (257.2坪)
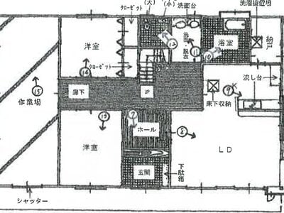
間取り
-
種類
居宅・作業場
用途地域
都市計画区域外無指定
物件番号
  • 1. 土地
  • 2. 建物 (所有権)

物件詳細

物件番号
1
種別
土地
所在地
山県郡安芸太田町大字小板字城根 1255番9
地目 (登記)
宅地
地目 (現況)
-
土地面積 (登記)
850.23m² (257.2坪)
土地面積 (現況)
-
用途地域
都市計画区域外無指定
土地の利用状況
-
建ぺい率
-
容積率
-
持分
-
物件番号
2
種別
建物
所在地
山県郡安芸太田町大字小板字城根1255番地9
家屋番号
入札終了
種類 (登記)
居宅・物置
種類 (現況)
居宅・作業場
構造 (登記)
木造瓦葺2階建
構造 (現況)
-
床面積 (登記)
1階 182.47m² (55.2坪)
2階 92.16m² (27.9坪)
床面積 (現況)
1階 182.47m² (55.2坪)
2階 約124.96m² (37.8坪)
間取り
その他
敷地利用権
所有権
占有者
あり
築年月
平成13年4月 (2001年・築24年)
持分
-
注意事項
本詳細情報画面の内容については、必ず物件資料3点セット(物件明細書、現況調査報告書及び評価書等)をダウンロードの上、ご確認ください(民事執行法63条2項1号の申出がある場合等があります)。 本システムからダウンロードした「現況調査報告書」及び「評価書」に引用されている写真、資料及び図面は、本システム上は添付されていない場合があります。

売却スケジュール

特別売却閲覧開始日
2025年10月20日(月)
特別売却期間
2025年10月21日(火)のみ
状態
終了
スケジュール
年間売却スケジュール/広島地方裁判所本庁

過去の出品

1回目
353万円 (2025.10.17不売)
出典:裁判所BIT 不動産競売物件情報

最寄り駅・周辺地図

最寄り駅が見つかりませんでした

広島県山県郡安芸太田町 戸建ての販売価格

取引平均-

近隣の戸建て落札価格

入札数{{ point.bids }}入札数?{{ point.base }}{{ point.sold }}{{ point.sqm.toLocaleString() }}m²築{{ point.age }}年
周辺には戸建ての落札履歴がありません。地図をドラッグして範囲や縮尺を変えてお試しください